$549,900

68 Cottage Street

Pictou Nova Scotia B0K 1H0

Single Family
3885.0 square feet
4
2
MLS® 202607440
Listing Courtesy of RE/MAX Nova

Description

Discover timeless charm and historic elegance in this stunning 2.5-story home at 68 Cottage Street. Originally built in 1890 by the original owners of the renowned Pictou Shipyard and thoughtfully rebuilt in 1940, this residence offers a unique blend of heritage and modern comfort. Set on over one acre on a corner lot, the home features striking cedar siding with classic brick accents and lush ivy adorning the front facade. Towering linden trees surround the estate, creating a serene and picturesque setting in a highly desirable neighborhood. Step inside to experience spacious, light-filled interiors with huge hallways and original hardwood floors beneath the laminate wood coverings on the main floor. The home boasts four generous bedrooms, two full bathrooms, and two versatile attic rec rooms, plus a secret room accessed through one of the bedrooms! Three cozy fireplaces and original iron radiators provide warmth and character throughout. Original windows, complete with dual panels that swing open from the inside, preserve the homes historic charm while flooding rooms with natural light. The expansive great room features custom built-in library shelving, and the formal dining room impresses with a full wall of built-in cabinetryperfect for entertaining. French doors on the staircase landing lead outside, where a balcony is begging to be built. Additional highlights include a large detached garage, insulated and wired with a wood stove, and a converted side entrance mudroom with a pellet stove that opens to the kitchen, blending functionality and comfort seamlessly. Recent renovations include fresh plaster and paint throughout, preserving the homes character while ensuring a move-in-ready experience. (id:56844)

ID:
202607440
Category:
Single Family
Status:
Active
Living Area:
3885.0 square feet
Stories:
2.50
Bathrooms:
2
Bedrooms:
4
Lot:
1.0573 acres
MLS® Number:
202607440
Common Interest
Freehold
Parcel Number:
65084873
Building Type:
House
Community Name:
Pictou
Days On Market:
45
View
  • Harbour
Lot Features
  • Treed
  • Balcony
  • Level
Community Features
  • School Bus
  • Recreational Facilities
Appliances
  • Washer
  • Dishwasher
  • Oven
  • Dryer
Cooling
  • Wall unit
  • Heat Pump
Foundationd Details:
  • Stone
  • Poured Concrete
Basement:
  • Partially finished
  • Full
Exterior Features:
  • Wood shingles
Flooring:
  • Hardwood
  • Laminate
  • Ceramic Tile
  • Vinyl
Parking Features:
  • Detached Garage
  • Garage
  • Parking Space(s)
  • Gravel
  • Heated Garage
Structure Type:
  • House
Water Source:
  • Municipal water
Sewer:
  • Municipal sewage system
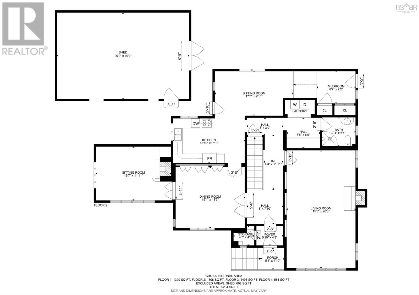
Foyer 17.5 x 9.10
Kitchen 15.10 x 9.10
Laundry room 7.5 x 6.9
Bath (# pieces 1-6) 7.4 x 6.4
Dining room 15.4 x 13.7
Great room 15.3 x 26.3
Den 16.7 x 11.11
Porch 5.10 x 4.3
Mud room 8.7 x 7.2
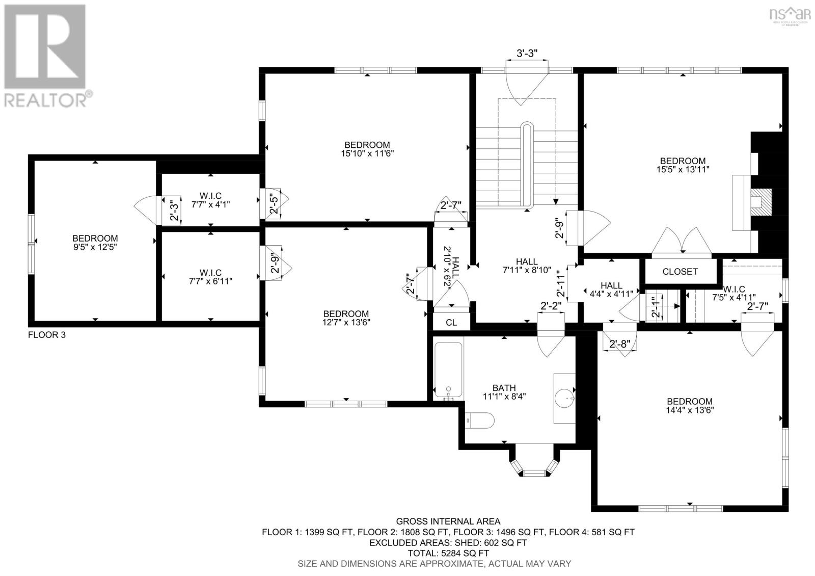
Bedroom 14.4 x 13.5
Bedroom 15.5 x 13.11
Bedroom 12.7 x 13.6
Bedroom 15.10 x 11.6
Games room 9.5 x 12.5
Bath (# pieces 1-6) 11.1 x 8.4
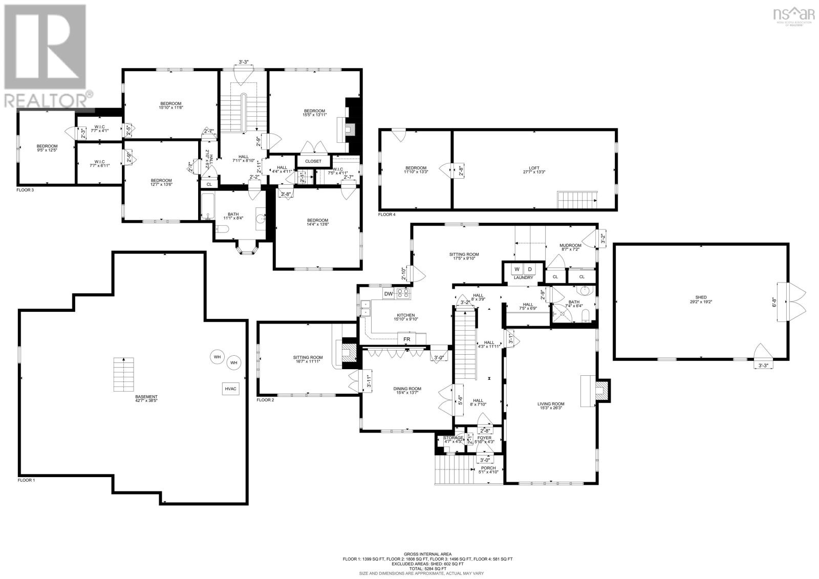
Recreational, Games room 27.7 x 13.3
Recreational, Games room 11.10 x 13.3
From Pictou rotary, take West River Rd, left onto Alfred St, right onto Cottage. Property is on left
Neighbourhood map for property at 68 Cottage Street
68 Cottage Street Pictou
Provincial Map showing 68 Cottage Street
68 Cottage Street Pictou

Inquire Today

Name is required.
Phone is required.
Valid email is required.
Message is required.
Please complete the captcha.
Powered By Realtor logo MLS® Listing data is provided by The Canadian Real Estate Association (CREA) and is deemed reliable but not guaranteed. The trademarks REALTOR®, REALTORS®, and the REALTOR® logo are controlled by CREA and identify real estate professionals who are members of CREA. The trademarks MLS®, Multiple Listing Service® and related logos are owned by CREA and identify the quality of services provided by real estate professionals who are members of CREA. Listing information is provided by participating real estate brokerages.

Similar Listings