$719,900

PUN73E 185 Puncheon Way

West Bedford Nova Scotia B4B 2N6

Single Family
2164.0 square feet
3
4/1
MLS® 202606642
Listing Courtesy of Royal LePage Atlantic

Description

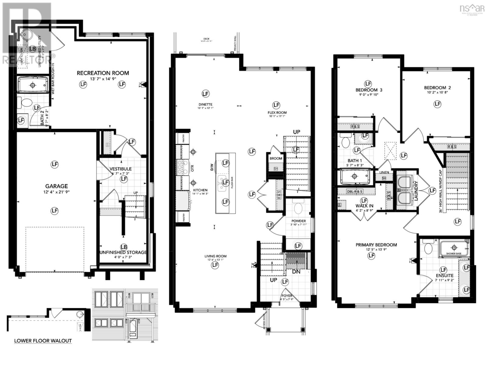
The Aztec marks the final release of Cresco townhomes in Brookline Park at the Parks of West Bedford. This limited collection offers over 2,100 square feet of thoughtfully designed living space in one of West Bedfords most desirable communities. Featuring 3 bedrooms and 3.5 bathrooms, this flexible layout adapts easily to your lifestyle. The main floor includes an inviting eat-in kitchen, dual living areas, designated dining space, half bath, and excellent storage. Upstairs, the spacious primary suite offers a custom tiled ensuite shower and ample closet space, along with two additional well-sized bedrooms. The fully finished walkout lower levels adds a large rec room and full bathroom, ideal for a home office, gym or guest space. A sizeable garage, additional storage, and two ductless heat pumps for efficient year-round comfort complete the package. Located in the established Brookline Park community with walkable streets, parks, and convenient access to schools and amenities, this is your final opportunity to own a brand new Cresco townhome in this phase. Limited availability. (id:56844)

ID:
202606642
Category:
Single Family
Status:
Active
Living Area:
2164.0 square feet
Stories:
2.00
Bathrooms:
4
Bathrooms (partial):
1
Bedrooms:
3
Lot:
0.4396 acres
MLS® Number:
202606642
Common Interest
Freehold
Parcel Number:
41548637
Building Type:
Row / Townhouse
Community Name:
West Bedford
Days On Market:
45
Community Features
  • School Bus
Appliances
  • Microwave Range Hood Combo
Cooling
  • Heat Pump
Foundationd Details:
  • Poured Concrete
Flooring:
  • Hardwood
  • Laminate
  • Ceramic Tile
Parking Features:
  • Garage
  • Paved Yard
Structure Type:
  • Row / Townhouse
Water Source:
  • Municipal water
Sewer:
  • Municipal sewage system
Foyer 4.5 x 7.9
Bath (# pieces 1-6) 3.10 x 7.11
Living room 12.6 x 14.6
Kitchen 13.11 x 14.1
Dining nook 9.9 x 12.1
Family room 10.1 x 11.0
Brookline Drive to Puncheon Way
Neighbourhood map for property at PUN73E 185 Puncheon Way
PUN73E 185 Puncheon Way West Bedford
Provincial Map showing PUN73E 185 Puncheon Way
PUN73E 185 Puncheon Way West Bedford

Inquire Today

Name is required.
Phone is required.
Valid email is required.
Message is required.
Please complete the captcha.
Powered By Realtor logo MLS® Listing data is provided by The Canadian Real Estate Association (CREA) and is deemed reliable but not guaranteed. The trademarks REALTOR®, REALTORS®, and the REALTOR® logo are controlled by CREA and identify real estate professionals who are members of CREA. The trademarks MLS®, Multiple Listing Service® and related logos are owned by CREA and identify the quality of services provided by real estate professionals who are members of CREA. Listing information is provided by participating real estate brokerages.

Similar Listings