$879,900

3615 Acadia Street

North End Nova Scotia B3K 3P7

Single Family
1500.0 square feet
3
3/1
MLS® 202606287
Listing Courtesy of Red Door Realty

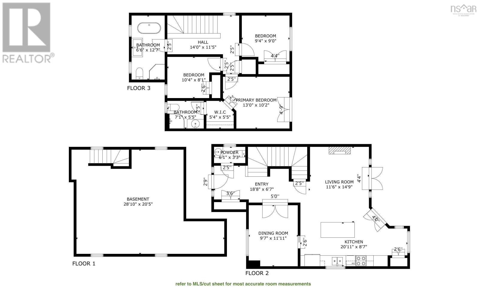
Description

This high end 2024 custom renovated home stands apart from standard cookie cutter construction. Meticulously crafted by a Journeyman carpenter with high end selections and skillful execution. The interior features high-quality engineered hardwood flooring throughout; starting with a bright foyer that connects to a large coat closet and a convenient half bath upon entry. The open-concept kitchen and living area include high-end stainless steel appliances, bonus pantry space and two sets of double doors leading to a large back deck; all complemented by a separate private dining room. Upstairs youll find three bedrooms and two full bathrooms. The primary suite serves as a functional retreat with a private balcony with ocean view, dedicated heat pump and a walkthrough closet leading to an ensuite. The other bathroom on this level features a stand alone tub and a tiled shower. Designed with future expansion in mind, this property includes an unfinished basement and a large attic with skylights that is structurally prepared for a future staircase. A full second storey was added during renovations, with all new plumbing and electrical systems throughout the whole home. Other thoughtful details include custom wainscoting, a freshly paved driveway, vinyl shingles to avoid exterior re-paints and two heat pumps. Outside, the home features a freshly paved driveway and a large, open backyard. Located in Halifaxs fantastic North End, you are minutres Fort Needham Memorial Park, the Hydrostone District and local schools like Hydrostone Academy and the brand new St. Josephs-Alexander McKay. (id:56844)

ID:
202606287
Category:
Single Family
Status:
Active
Living Area:
1500.0 square feet
Stories:
2.00
Bathrooms:
3
Bathrooms (partial):
1
Bedrooms:
3
Lot:
0.0903 acres
MLS® Number:
202606287
Common Interest
Freehold
Parcel Number:
00035600
Year Built:
1943
Building Type:
House
Community Name:
North End
Days On Market:
0
Lot Features
  • Walk-In Closet
Community Features
  • Recreational Facilities
Appliances
  • Washer
  • Refrigerator
  • Dishwasher
  • Stove
  • Dryer
  • Microwave
Cooling
  • Heat Pump
Foundationd Details:
  • Poured Concrete
Exterior Features:
  • Vinyl
  • Aluminum siding
Flooring:
  • Tile
  • Engineered hardwood
Parking Features:
  • Paved Yard
Structure Type:
  • House
Water Source:
  • Municipal water
Sewer:
  • Municipal sewage system
Dining room 9.11 x 12.2
Kitchen 21.6 x 12.2
Living room 12.2 x 11.1
Foyer 17.9 x 7.1
Bath (# pieces 1-6) 2.11 x 6.4
Primary Bedroom 11.1 x 14
Bath (# pieces 1-6) 5.10 x 5.11
Bedroom 10.1 x 9.9
Bedroom 9 x 11.2
Recreational, Games room 18.6 x 21.10 + 6.7 x 8
Vestry to Acadia
Neighbourhood map for property at 3615 Acadia Street
3615 Acadia Street North End
Provincial Map showing 3615 Acadia Street
3615 Acadia Street North End

Inquire Today

Name is required.
Phone is required.
Valid email is required.
Message is required.
Please complete the captcha.
Powered By Realtor logo MLS® Listing data is provided by The Canadian Real Estate Association (CREA) and is deemed reliable but not guaranteed. The trademarks REALTOR®, REALTORS®, and the REALTOR® logo are controlled by CREA and identify real estate professionals who are members of CREA. The trademarks MLS®, Multiple Listing Service® and related logos are owned by CREA and identify the quality of services provided by real estate professionals who are members of CREA. Listing information is provided by participating real estate brokerages.