$484,900

66 McKay Lane

Eastern Passage Nova Scotia B3G 1M9

Single Family
1132.0 square feet
3
1
MLS® 202606200
Listing Courtesy of Red Door Realty

Description

Experience the peace of mind that comes with a 2024 constructed home, combined with the family-oriented seaside neighbourhood of Eastern Passage. This fully detached three bedroom, one full bathroom bungalow is tucked away on a quiet, country-like lane; offering a semi-rural setting all while being close to amenities and Downtown Dartmouth. Newer construction on a mature lot is a rare find. The open-concept kitchen and living room area is kept comfortable year-round by an energy-efficient heat pump. Situated on a generous 6,900-square-foot lot, the property offers ample outdoor space via two side yards. The basement is already plumbed-in for a bathroom and framed for two additional rooms, providing a head start on nearly doubling your living space to over 2,200 square feet. Or leave it as is for storage and/or a large workshop. This property has plenty of room to build a garage or a backyard suite. C2 zoning is broad and allows for business use; a great option for self employed folks. Enjoy a lifestyle defined by nature and community, just minutes from the McCormacks Beach boardwalk, Rainbow Haven Beach and good schools. This location is also exceptionally convenient for military families, offering a quick commute to 12 Wing Shearwater and CFB Halifax. From the local charm of Fishermans Cove to the easy access to the city, this home offers the best of seaside living. Comes with a ten year Atlantic Home Warranty. (id:56844)

ID:
202606200
Category:
Single Family
Status:
Active
Living Area:
1132.0 square feet
Stories:
1.00
Bathrooms:
1
Bedrooms:
3
Lot:
0.1584 acres
MLS® Number:
202606200
Common Interest
Freehold
Parcel Number:
00372631
Year Built:
2024
Building Type:
House
Community Name:
Eastern Passage
Days On Market:
48
Lot Features
  • Sump Pump
Appliances
  • Washer
  • Refrigerator
  • Stove
  • Dryer
Cooling
  • Heat Pump
Architectural Style:
  • Bungalow
Foundationd Details:
  • Poured Concrete
Exterior Features:
  • Vinyl
Flooring:
  • Laminate
Structure Type:
  • House
Water Source:
  • Municipal water
Sewer:
  • Municipal sewage system
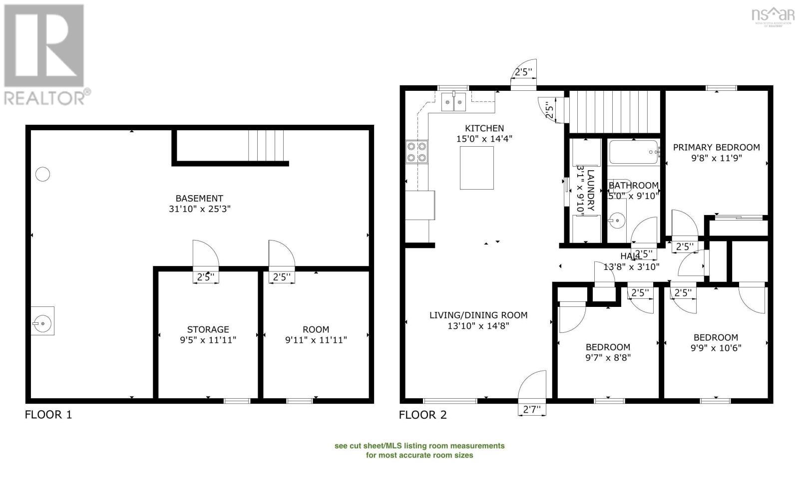
Kitchen 15.3 x 14.10
Living room 14.3 x 13.10
Primary Bedroom 11.10 x 10.1
Bedroom 10.2 x 8.3
Bedroom 10.2 x 10.7
Bath (# pieces 1-6) 9.10 x 5.5
Main to McKay
Neighbourhood map for property at 66 McKay Lane
66 McKay Lane Eastern Passage
Provincial Map showing 66 McKay Lane
66 McKay Lane Eastern Passage

Inquire Today

Name is required.
Phone is required.
Valid email is required.
Message is required.
Please complete the captcha.
Powered By Realtor logo MLS® Listing data is provided by The Canadian Real Estate Association (CREA) and is deemed reliable but not guaranteed. The trademarks REALTOR®, REALTORS®, and the REALTOR® logo are controlled by CREA and identify real estate professionals who are members of CREA. The trademarks MLS®, Multiple Listing Service® and related logos are owned by CREA and identify the quality of services provided by real estate professionals who are members of CREA. Listing information is provided by participating real estate brokerages.

Similar Listings