$995,000

400 Maders Cove Road

Maders Cove Nova Scotia B0J 2E0

Single Family
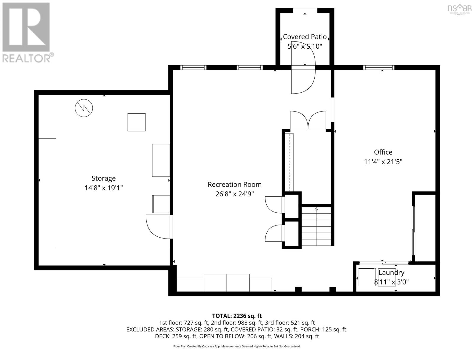
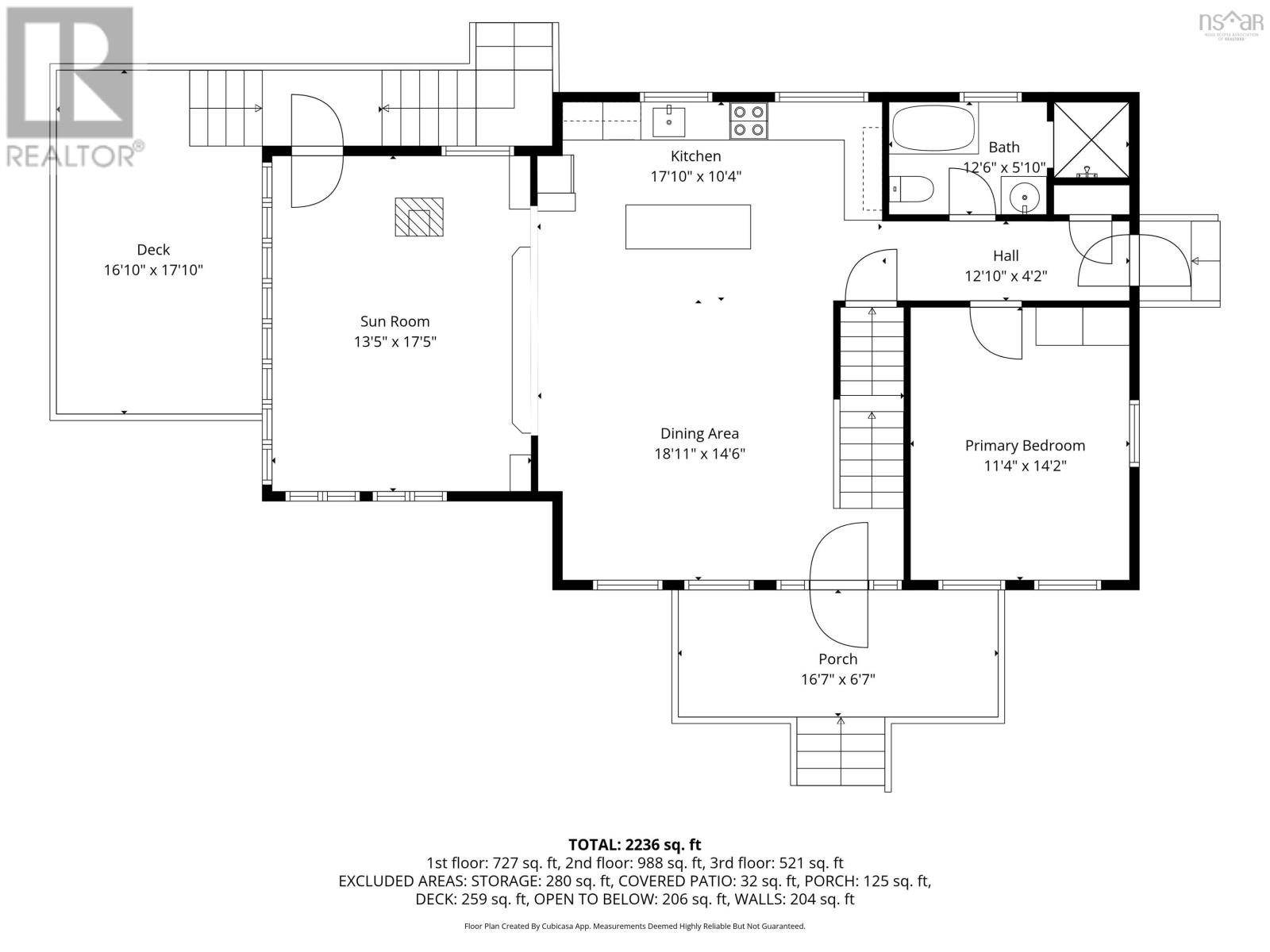
2236.0 square feet
3
2/1
MLS® 202605874
Listing Courtesy of Engel & Volkers (Lunenburg)

Description

Thich Nhat Hanh suggests that reincarnation, or rebirth, is shaped by our thoughts, speech and actions which form our true continuation In fact, rebirth and continuation inform the story of this house. The bones of a 19th century cape with its solid beams and timbers together with old floorboards, doors and things that had lived a little were moved to the selected hilltop building site overlooking the islands and waters of Mahone Bay. The owners, passionate about old houses along with the designer, well known for breathing new life into old things, collaborated to produce a home of lyrical, hard to place peaceful ambience. The wide board plank floors, rustic exposed beams and the careful re-use and salvage of materials from across the province are contrasted and complimented by the new sunroom with its vaulted ceiling and warm natural light. Functional features include the open concept living area with principle bedroom and bath on the main level... guest bedrooms are on the second floor and the walkout basement includes an office, den and storage area. Outside, the slate walkways and private gardens have been a labour of love, well planned yet natural and casual and professionally maintained over the years. Here, the beguiling ocean views never disappoint and a lovely sand beach is within easy walking distance. Antique or modern? No matter, its just feels right and this one of a kind property now patiently awaits new stewardship continuation for those so inclined. (id:56844)

ID:
202605874
Category:
Single Family
Status:
Active
Living Area:
2236.0 square feet
Stories:
1.50
Bathrooms:
2
Bathrooms (partial):
1
Bedrooms:
3
Lot:
1.8607 acres
MLS® Number:
202605874
Common Interest
Freehold
Parcel Number:
60378056
Year Built:
1985
Building Type:
House
Community Name:
Maders Cove
Days On Market:
46
View
  • Ocean view
Lot Features
  • Sloping
Appliances
  • None
Cooling
  • Heat Pump
Foundationd Details:
  • Poured Concrete
Basement:
  • Finished
  • Full
  • Walk out
Exterior Features:
  • Wood shingles
Flooring:
  • Tile
  • Vinyl
  • Wood
Parking Features:
  • Parking Space(s)
  • Gravel
Structure Type:
  • House
Water Source:
  • Drilled Well
  • Well
Sewer:
  • Septic System
Sunroom 13.5 x 17.5
Kitchen 17.10 x 10.4
Dining room 18.11 x 14.6
Bath (# pieces 1-6) 12.6 x 5.10-4pc
Primary Bedroom 11.4 x 14.2
Bedroom 11.1 x 10.9
Bedroom 12.5 x 12.2
Den 11.4 x 18.7
Bath (# pieces 1-6) 5. x 5.10-2pc
Recreational, Games room 26.8 x 24.9
Den 11.4 x 21.5
Mud room 5.6 x 5.10
Laundry room 8.11 x 3
Storage 14.8 x 19.1
From Mahone Bay drive towards Lunenburg on Rt 3. Turn left on the Maders Cove road, drive past Westhavers Beach and look for the number 400 on the right-hand side. Please contact listing agent for access.
Neighbourhood map for property at 400 Maders Cove Road
400 Maders Cove Road Maders Cove
Provincial Map showing 400 Maders Cove Road
400 Maders Cove Road Maders Cove

Inquire Today

Name is required.
Phone is required.
Valid email is required.
Message is required.
Please complete the captcha.
Powered By Realtor logo MLS® Listing data is provided by The Canadian Real Estate Association (CREA) and is deemed reliable but not guaranteed. The trademarks REALTOR®, REALTORS®, and the REALTOR® logo are controlled by CREA and identify real estate professionals who are members of CREA. The trademarks MLS®, Multiple Listing Service® and related logos are owned by CREA and identify the quality of services provided by real estate professionals who are members of CREA. Listing information is provided by participating real estate brokerages.

Similar Listings