$859,900

Lot 5094 392 Bondi Drive

Middle Sackville Nova Scotia B4E 0W2

Single Family
2504.0 square feet
4
4/1
MLS® 202605679
Listing Courtesy of Royal LePage Atlantic

Description

Join us every Saturday and Sunday from 2-4 pm at our Model Home at 451 Zaffre Drive to view our beautiful selections and to discuss a potential new build for you. Youve been asking for it, and here it is! Amara Developments is proud to introduce The Ponderosa - a spacious 3+1 bedroom, 3.5 bathroom 2-STORY HOME to its repertoire of exceptional new construction homes in majestic Indigo Shores, Middle Sackville. This exciting and modern design offers a perfect blend of contemporary style and function in an exciting new phase of the community. With a bright and airy layout and over 2,500 square feet of finished living space, this home is designed for those seeking open-concept, three-level living and a thoughtful floor plan for a growing family. Step inside and experience contemporary living, featuring clean lines, abundant natural light, and luxurious fixtures characteristic of the Builder. The main level features a large living room and dedicated dining space that flow seamlessly into the chefs kitchen with its abundance of full-height cabinetry, sit-up island, and full walk-in pantryideal for both everyday living and entertaining. A kindly tucked away powder room and 20x20 attached double garage complete this compelling floor. The upper level hosts a glorious primary bedroom with TWO large closets and a spa-like 5PC ensuite that will be the delight of its parents. Two more large bedrooms, an additional full bath, and a dedicated laundry room complete this level. Downstairs, wont feel so down with its robust recreation room for the kiddos, 4th bedroom, full bath, and ...whats this?! A bonus den/games or storage room that can serve a multitude of purposes. The oversized garage provides enough space for parking, tools, seasonal gear, or recreational equipment. (id:56844)

ID:
202605679
Category:
Single Family
Status:
Active
Living Area:
2504.0 square feet
Stories:
2.00
Bathrooms:
4
Bathrooms (partial):
1
Bedrooms:
4
Lot:
1.7648 acres
MLS® Number:
202605679
Common Interest
Freehold
Parcel Number:
41519190
Building Type:
House
Community Name:
Middle Sackville
Days On Market:
48
Cooling
  • Heat Pump
Foundationd Details:
  • Poured Concrete
Basement:
  • Finished
  • Full
Exterior Features:
  • Steel
  • Stone
  • Vinyl
  • Aluminum siding
Flooring:
  • Laminate
  • Ceramic Tile
  • Porcelain Tile
Parking Features:
  • Attached Garage
  • Garage
  • Gravel
Structure Type:
  • House
Water Source:
  • Drilled Well
Sewer:
  • Septic System
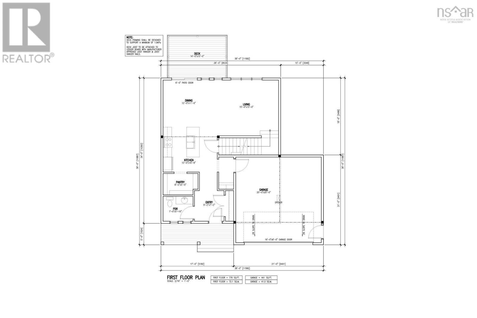
Foyer 9.2 x 7.2
Bath (# pieces 1-6) 7. x 5.10
Kitchen 12. x 10.6
Other Pantry- 8.2 x 5
Dining room 12. x 11
Living room 15. x 13
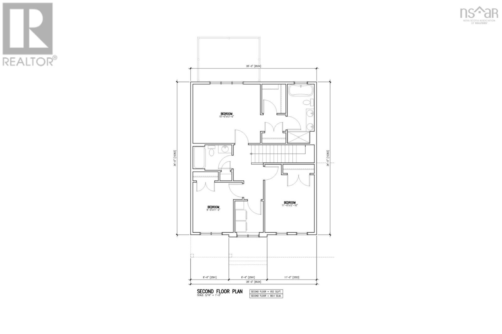
Bedroom 11. x 12.10
Bedroom 9. x 11.2
Primary Bedroom 15. x 13
Ensuite (# pieces 2-6) N/A
Bath (# pieces 1-6) N/A
Recreational, Games room 14.8 x 13
Bath (# pieces 1-6) N/A
Bedroom 10.9 x 10.8
Den 10. x 12.9
Utility room 4.10 x 8.9
Margeson Drive to Midnight Run to Gaspereau Run to Bondi Drive
Neighbourhood map for property at Lot 5094 392 Bondi Drive
Lot 5094 392 Bondi Drive Middle Sackville
Provincial Map showing Lot 5094 392 Bondi Drive
Lot 5094 392 Bondi Drive Middle Sackville

Inquire Today

Name is required.
Phone is required.
Valid email is required.
Message is required.
Please complete the captcha.
Powered By Realtor logo MLS® Listing data is provided by The Canadian Real Estate Association (CREA) and is deemed reliable but not guaranteed. The trademarks REALTOR®, REALTORS®, and the REALTOR® logo are controlled by CREA and identify real estate professionals who are members of CREA. The trademarks MLS®, Multiple Listing Service® and related logos are owned by CREA and identify the quality of services provided by real estate professionals who are members of CREA. Listing information is provided by participating real estate brokerages.

Similar Listings