$399,000

33 Oak Road

Belleville South Nova Scotia B0W 2X0

Single Family
2187.0 square feet
3
2
MLS® 202605247
Listing Courtesy of Modern Realty

Description

Looking for peaceful living with space to enjoy both inside and out? This beautiful 3 bedroom, 2 bath bungalow in Belleville South could be exactly what youve been waiting for. Tucked away on a quiet road, this home offers the perfect balance of privacy and convenience and is located just 5 minutes from Tusket and only 12 minutes from Yarmouth. Step inside and youll find a warm, welcoming layout featuring a beautiful kitchen and dining area that opens to the living room, making it the perfect place for family gatherings or entertaining friends. The recently renovated ensuite bathroom adds a fresh modern touch to the primary bedroom, while the main floor laundry provides everyday convenience. The lower level offers plenty of additional living space including a family room, office, gym area, and lots of storage, giving you flexibility for work, hobbies, or relaxing. Comfort is covered year round with two heat pumps for efficient heating and cooling, along with a cozy wood stove that adds warmth and charm during the cooler months. Outside, the property continues to impress with a two car garage, above-ground swimming pool, and storage shed. One of the propertys most charming features is the grapevines growing along the rock wall, adding character and a touch of natural beauty to the yard. (id:56844)

ID:
202605247
Category:
Single Family
Status:
Active
Living Area:
2187.0 square feet
Stories:
1.00
Bathrooms:
2
Bedrooms:
3
Lot:
1.162 acres
MLS® Number:
202605247
Common Interest
Freehold
Parcel Number:
90050410
Year Built:
1962
Building Type:
House
Community Name:
Belleville South
Days On Market:
46
Lot Features
  • Level
Pool Features
  • Above ground pool
Community Features
  • School Bus
Appliances
  • Refrigerator
  • Range - Electric
  • Dishwasher
  • Microwave Range Hood Combo
Cooling
  • Heat Pump
Architectural Style:
  • Bungalow
Foundationd Details:
  • Poured Concrete
Exterior Features:
  • Vinyl
Flooring:
  • Tile
  • Hardwood
  • Laminate
Parking Features:
  • Detached Garage
  • Garage
  • Paved Yard
  • Gravel
Structure Type:
  • House
Water Source:
  • Dug Well
  • Well
Sewer:
  • Septic System
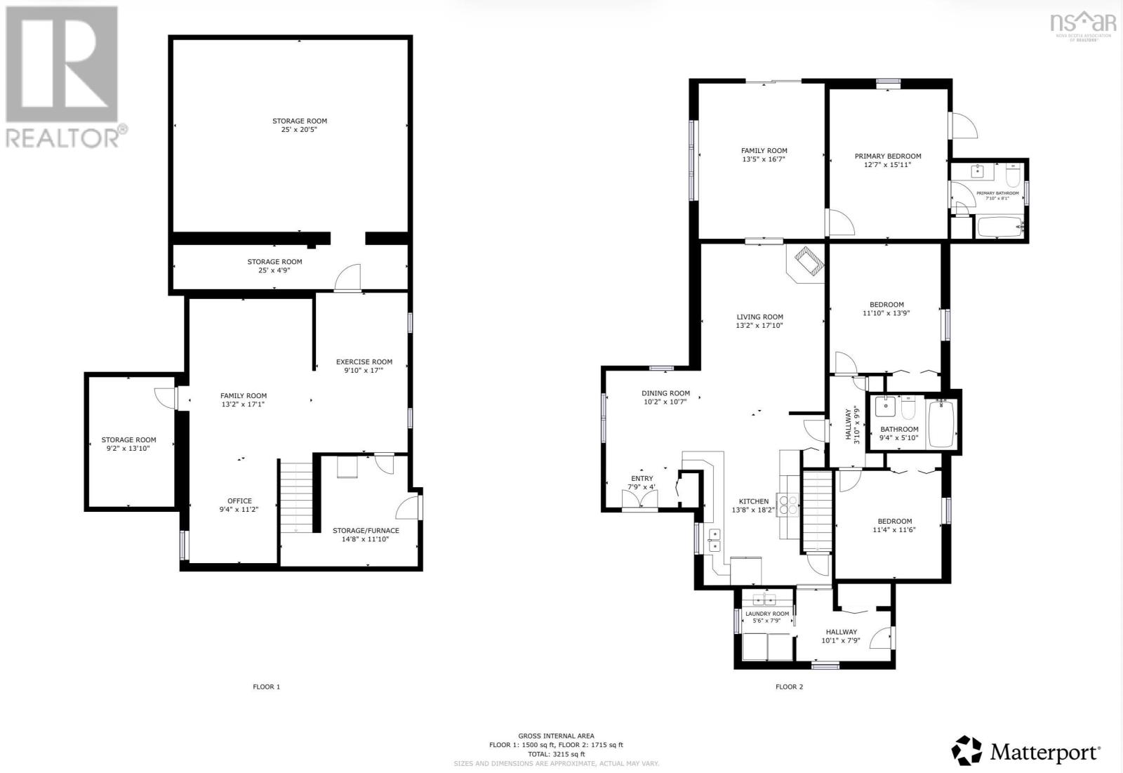
Mud room 79 x 4
Laundry room 56 x 79
Kitchen 138 x 182
Dining room 102 x 107
Living room 132 x 1710
Family room 135 x 167
Primary Bedroom 127 x 1511
Ensuite (# pieces 2-6) 710 x 81
Bath (# pieces 1-6) 94 x 112
Bedroom 1110 x 139
Bedroom 114 x 116
Den 94 x 112
Family room 132 x 171
Recreational, Games room 910 x 17
Turn off of highway #103 onto Eel Lake Road, then turn right onto Oak Road.
Neighbourhood map for property at 33 Oak Road
33 Oak Road Belleville South
Provincial Map showing 33 Oak Road
33 Oak Road Belleville South

Inquire Today

Name is required.
Phone is required.
Valid email is required.
Message is required.
Please complete the captcha.
Powered By Realtor logo MLS® Listing data is provided by The Canadian Real Estate Association (CREA) and is deemed reliable but not guaranteed. The trademarks REALTOR®, REALTORS®, and the REALTOR® logo are controlled by CREA and identify real estate professionals who are members of CREA. The trademarks MLS®, Multiple Listing Service® and related logos are owned by CREA and identify the quality of services provided by real estate professionals who are members of CREA. Listing information is provided by participating real estate brokerages.

Similar Listings