$360,000

Lot 14-08B 119 Tyler Avenue

Onslow Mountain Nova Scotia B6L 6A9

Single Family
1044.0 square feet
2
1
MLS® 202604967
Listing Courtesy of Hants Realty Ltd.

Description

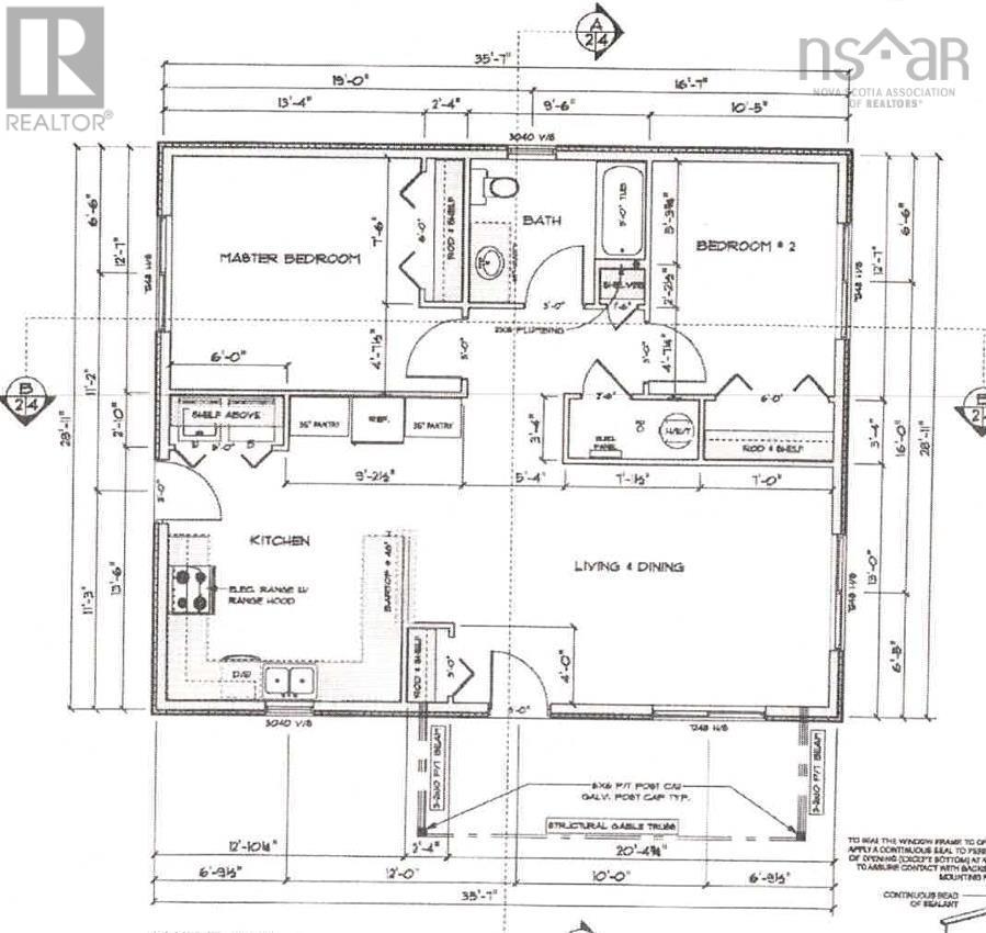
Looking for a new home that has 2 bedrooms on a heated in-floor slab in Colchester? Look no further than this new home located at 119 Tyler Avenue, Onslow Mountain. This 29,062 sqft lot is impressive. This new construction on slab will be mobility friendly with 36 door openings and lowered controls throughout. The kitchen features stainless steel appliances, plenty of cabinetry (soft close), two pantries and a gorgeous quartz countertop island peninsula with sink and breakfast bar. Perfect for a small family this home has 2 large bedrooms and a four piece bathroom and vanity with quartz countertops. The main floor bedrooms, living room and kitchen has vinyl plank flooring throughout. The heating systems are in-floor heat, and ductless heat pump that offers A/C in the summer and heating in the winter. Energy efficiency is key with this home so your energy bills should be minimal. There is additional room for storage in the utility room and closets. Light is LED throughout the home with pot lights in the kitchen. A 200 amp electrical breaker in the utility room with pressure tank, electric hot water heater and HRV unit for air exchange in the home. The home has vinyl siding, asphalt roof and vinyl windows. On the exterior of the home you will have a new single gravel driveway, seeded lot (weather dependent) and a covered porch area on the front of the home with pot lights. Dont miss out on this new build with 8 year LUX home warranty in this desirable neighbourhood in Onslow Mountain for early summer 2026 possession. The purchase price includes HST. All HST rebates back to the builder. MLA/TLA includes all interior space including the utility room. (id:56844)

ID:
202604967
Category:
Single Family
Status:
Active
Living Area:
1044.0 square feet
Stories:
1.00
Bathrooms:
1
Bedrooms:
2
Lot:
0.6672 acres
MLS® Number:
202604967
Common Interest
Freehold
Parcel Number:
20504130
Building Type:
House
Community Name:
Onslow Mountain
Days On Market:
45
Lot Features
  • Wheelchair access
  • Level
Community Features
  • School Bus
Appliances
  • Refrigerator
  • Range - Electric
  • Dishwasher
  • Microwave Range Hood Combo
Cooling
  • Heat Pump
Foundationd Details:
  • Concrete Slab
Basement:
  • None
Exterior Features:
  • Vinyl
Flooring:
  • Vinyl
Parking Features:
  • Gravel
Structure Type:
  • House
Water Source:
  • Drilled Well
Sewer:
  • Septic System
Living room 13x20.4
Kitchen 12.10x16.4
Primary Bedroom 13.4x12.7
Bedroom 12.7x10.5
Bath (# pieces 1-6) 9.6x7.6
Main St to W North River Rd, left on Laybolt Rd to Old Tatamagouche Rd, Left on Branch Rd, Right on Tyler Avenue look for 119 Tyler / Realt estate sign.
Neighbourhood map for property at Lot 14-08B 119 Tyler Avenue
Lot 14-08B 119 Tyler Avenue Onslow Mountain
Provincial Map showing Lot 14-08B 119 Tyler Avenue
Lot 14-08B 119 Tyler Avenue Onslow Mountain

Inquire Today

Name is required.
Phone is required.
Valid email is required.
Message is required.
Please complete the captcha.
Powered By Realtor logo MLS® Listing data is provided by The Canadian Real Estate Association (CREA) and is deemed reliable but not guaranteed. The trademarks REALTOR®, REALTORS®, and the REALTOR® logo are controlled by CREA and identify real estate professionals who are members of CREA. The trademarks MLS®, Multiple Listing Service® and related logos are owned by CREA and identify the quality of services provided by real estate professionals who are members of CREA. Listing information is provided by participating real estate brokerages.

Similar Listings