$629,900

SD06B 163 Terrastone Ridge Ridge

Dartmouth Nova Scotia B2X 0C4

Single Family
2200.0 square feet
3
4/1
MLS® 202604815
Listing Courtesy of Royal LePage Atlantic

Description

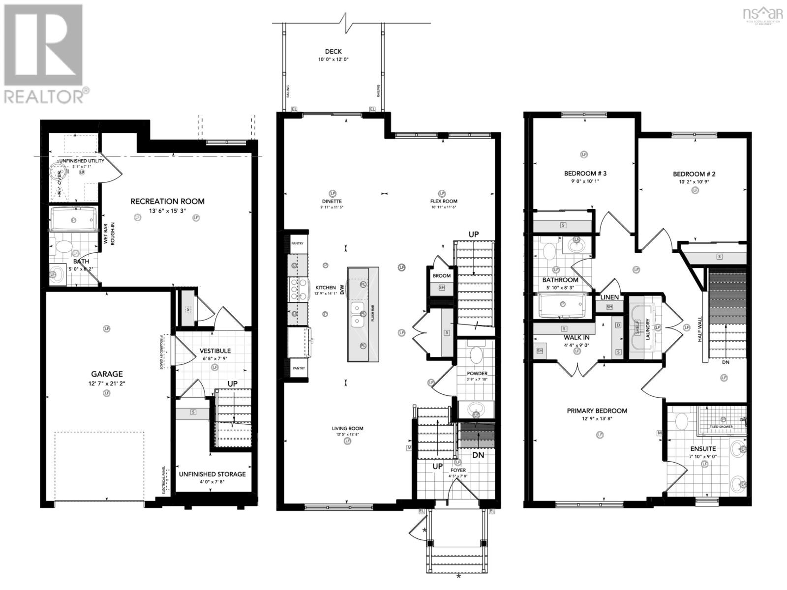
Introducing The Fairbanks by Cresco, a chic 3-bedroom middle unit townhome in one of HRMs most sought-after new communities, The Parks of Lake Charles. This stylish 3-level design features a built-in garage and a bright lookout lower level, offering added natural light and functional living space. The main level is thoughtfully designed for everyday comfort and entertaining, with a spacious living room, dedicated dining area, a well-appointed kitchen complete with pantry, and a convenient powder room. Upstairs, the private primary suite includes a walk-in closet and its own ensuite bath, complemented by two additional bedrooms, a full main bathroom, and a dedicated laundry room for added convenience. The fully finished lower level expands your living space with a large recreation room, full bathroom and wet bar rough-in. The lookout design enhances the lower level with natural light, creating a comfortable, versatile space ideal for relaxing, entertaining, or accommodating guests. The Fairbanks blends modern style with practical design,, delivering comfortable living in a prime Lake Charles location. Disclaimer: Photos shown are facsimiles only. Colour selections and finishes may vary by unit. (id:56844)

ID:
202604815
Category:
Single Family
Status:
Active
Living Area:
2200.0 square feet
Stories:
2.00
Bathrooms:
4
Bathrooms (partial):
1
Bedrooms:
3
Lot:
0.0648 acres
MLS® Number:
202604815
Common Interest
Freehold
Parcel Number:
41562232
Building Type:
Row / Townhouse
Community Name:
Dartmouth
Days On Market:
45
Community Features
  • School Bus
  • Recreational Facilities
Appliances
  • Microwave Range Hood Combo
Cooling
  • Heat Pump
Architectural Style:
  • 3 Level
Foundationd Details:
  • Poured Concrete
Exterior Features:
  • Stone
  • Vinyl
Flooring:
  • Hardwood
  • Laminate
  • Ceramic Tile
Parking Features:
  • Garage
  • Paved Yard
Structure Type:
  • Row / Townhouse
Water Source:
  • Municipal water
Sewer:
  • Municipal sewage system
Foyer 4.5 x 7.8
Living room 12.5 x 12.8
Bath (# pieces 1-6) 3.9 x 7.10
Kitchen 13.9 x 14.1
Dining nook 9.11 x 11.5
Family room 10.11 x 11.6
Primary Bedroom 12.9 x 13.8
Ensuite (# pieces 2-6) 7.10 x 9.0
Bath (# pieces 1-6) 5.10 x 8.3
Bedroom 10.2 x 10.9
Bedroom 9.0 x 10.1
Recreational, Games room 13.6 x 15.3
Bath (# pieces 1-6) 5.0 x 8.2
Storage 4.0 x 7.8
Waverley Road to Terrastone Ridge
Neighbourhood map for property at SD06B 163 Terrastone Ridge Ridge
SD06B 163 Terrastone Ridge Ridge Dartmouth
Provincial Map showing SD06B 163 Terrastone Ridge Ridge
SD06B 163 Terrastone Ridge Ridge Dartmouth

Inquire Today

Name is required.
Phone is required.
Valid email is required.
Message is required.
Please complete the captcha.
Powered By Realtor logo MLS® Listing data is provided by The Canadian Real Estate Association (CREA) and is deemed reliable but not guaranteed. The trademarks REALTOR®, REALTORS®, and the REALTOR® logo are controlled by CREA and identify real estate professionals who are members of CREA. The trademarks MLS®, Multiple Listing Service® and related logos are owned by CREA and identify the quality of services provided by real estate professionals who are members of CREA. Listing information is provided by participating real estate brokerages.

Similar Listings