$634,900

80 Grindstone Drive, Kidston Estates

Halifax Nova Scotia B3R 0A6

Single Family
2100.0 square feet
4
4/1
MLS® 202603903
Listing Courtesy of Sutton Group Professional Realty

Description

Welcome to 80 Grindstone Drive in the desirable community of Kidston Estates. This well-maintained two-storey home offers functional living space, thoughtful updates, and a private backyard perfect for everyday living and entertaining. The main level features a spacious layout with a large kitchen complete with 7x3 island, professionally painted cabinetry, and a dining area that flows into the bright living room. A shiplap feature wall adds character, while the sliding patio door leads to a back deck with privacy walls overlooking the fully fenced backyard with gate and storage shed. The main level is completed with a convenient powder room. Upstairs youll find three bedrooms, including the large primary suite with a walk-in closet and ensuite featuring a tub/shower combination. A second full bathroom completed the upper level. The fully finished basement provides excellent additional living space with a large rec room offering room for a second family area and kids play space, a fourth bedroom ideal for guests or a home office, a third full bathroom, laundry area, and storage under the stairs. Additional upgrades throughout include 3 ductless mini-split heatpumps, new flooring on the main level and basement, a new hot water tank (2025), new stove and dishwasher (2025), and updated toilets in the powder room and primary ensuite (2026). Located in a quiet community just minutes from downtown Halifax, this home offers convenient access to schools, rec centre, grocery stores, and major highways, making everyday commuting and errands effortless. (id:56844)

ID:
202603903
Category:
Single Family
Status:
Active
Living Area:
2100.0 square feet
Stories:
2.00
Bathrooms:
4
Bathrooms (partial):
1
Bedrooms:
4
Lot:
0.1149 acres
MLS® Number:
202603903
Common Interest
Freehold
Parcel Number:
41188178
Year Built:
2010
Building Type:
House
Community Name:
Halifax
Days On Market:
45
Lot Features
  • Level
Community Features
  • School Bus
  • Recreational Facilities
Appliances
  • Refrigerator
  • Dishwasher
  • Stove
  • Microwave Range Hood Combo
  • Washer/Dryer Combo
Cooling
  • Wall unit
  • Heat Pump
Foundationd Details:
  • Poured Concrete
Basement:
  • Finished
  • Full
Exterior Features:
  • Vinyl
Flooring:
  • Tile
  • Laminate
Parking Features:
  • Paved Yard
Structure Type:
  • House
Water Source:
  • Municipal water
Sewer:
  • Municipal sewage system
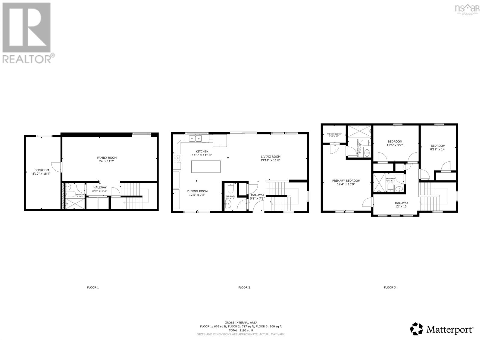
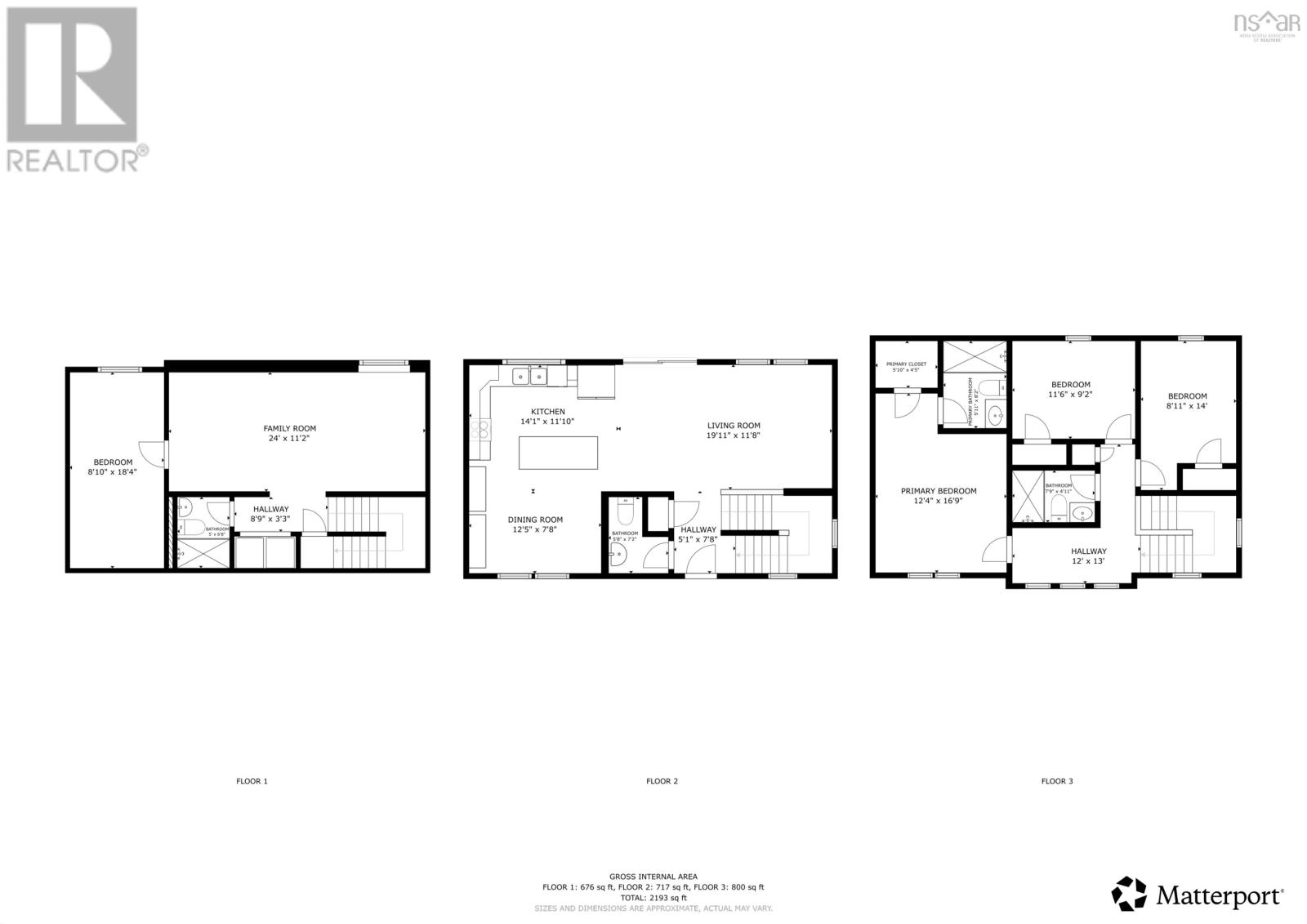
Living room 19..11 x 11..8 /na
Kitchen 14..1 x 11..10 /na
Dining room 12..5 x 7..8 /na
Bath (# pieces 1-6) 7..2 x 5..8 /na
Other (Covered Deck)
Other (Deck)
Primary Bedroom 16..9 z 12..4 /50
Other (WIC)5..10 x 4..5 /na
Ensuite (# pieces 2-6) 8..2 x 5..11 /na
Bedroom 11..6 x 9..2 /48
Bedroom 14. x 8..11 /48
Bath (# pieces 1-6) 7..9 x 4..11 /48
Family room 24. x 11..2 /oc
Bedroom 18..4 x 8..10 /oc
Bath (# pieces 1-6) 6..8 x 5. /39
Laundry room (Nook/Closet) /39
Other (Storage) /oc
Northwest Arm Dr. to Old Sambro Rd. to Rockingstone Road to Beach Stone (Kidston Estates) to Grindstone Dr.
Neighbourhood map for property at 80 Grindstone Drive, Kidston Estates
80 Grindstone Drive, Kidston Estates Halifax
Provincial Map showing 80 Grindstone Drive, Kidston Estates
80 Grindstone Drive, Kidston Estates Halifax

Inquire Today

Name is required.
Phone is required.
Valid email is required.
Message is required.
Please complete the captcha.
Powered By Realtor logo MLS® Listing data is provided by The Canadian Real Estate Association (CREA) and is deemed reliable but not guaranteed. The trademarks REALTOR®, REALTORS®, and the REALTOR® logo are controlled by CREA and identify real estate professionals who are members of CREA. The trademarks MLS®, Multiple Listing Service® and related logos are owned by CREA and identify the quality of services provided by real estate professionals who are members of CREA. Listing information is provided by participating real estate brokerages.

Similar Listings