$359,900

272 Lakewood Court

East Uniacke Nova Scotia B0N 1Z0

Single Family
672.0 square feet
2
1
MLS® 202602753
Listing Courtesy of RE/MAX Nova

Description

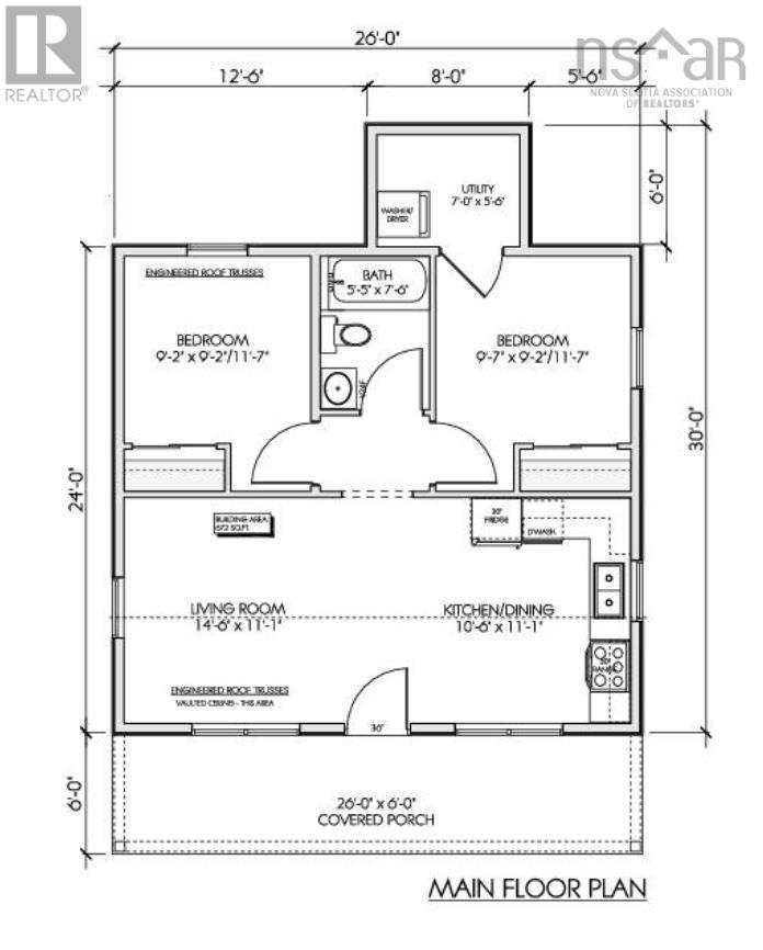
Have you dreamed of affordable living in your own house? We have the answer! Loon Point, in the Villages of Long Lake, an Lake Side Community in East Uniacke! Its just a short commute to the cities and airport. This Bare Land Condo has it all. You own your lot and everything on it, while the Condo Corp manages and maintains the roads, parks, trails and lake access points. They are even responsible to inspect your septic tank and clean it out if required. Yes every property owner has deeded access to the 3 private lake access points with their wharves, canoe, kayak, one even has a paddle board racks and boat launch. Undeveloped Lots start at approximately $67,500 and Homes start in the $300,000 price range. We offer many home designs suited to this development. We can also help design and build your custom home. This Cricket is a cozy Rancher. It is a 648 sq ft 2 bedroom home on a 1.4 acre lot. The House includes 2 comfortably sized bedrooms, a 4 piece bath, a utility/laundry room and a comfortable great room. Comfortable Cozy and very affordable. Call to book your appointment now (id:56844)

ID:
202602753
Category:
Single Family
Status:
Active
Living Area:
672.0 square feet
Stories:
1.00
Bathrooms:
1
Bedrooms:
2
Lot:
1.4087 acres
MLS® Number:
202602753
Common Interest
Condo/Strata
Parcel Number:
45435583
Building Type:
House
Community Name:
East Uniacke
Days On Market:
14
Lot Features
  • Treed
  • Level
  • Walk-In Closet
Cooling
  • Wall unit
  • Heat Pump

Condo

Association Fee:
$25
Fee Frequency:
Monthly
Association Name:
Condo Corp # Hants 6
Architectural Style:
  • Bungalow
Foundationd Details:
  • Concrete Slab
Basement:
  • None
Exterior Features:
  • Vinyl
Flooring:
  • Vinyl Plank
Parking Features:
  • Gravel
Structure Type:
  • House
Water Source:
  • Drilled Well
Sewer:
  • Septic System
Foyer included
Great room 25 x 11.1
Living room included
Dining room included
Kitchen included
Bedroom 9.2 x 9.7 + jog
Bedroom 9.2 x 9.2 + Jog
Bath (# pieces 1-6) 5.5 x 7.6
Laundry room 7 x 5.6
Utility room included
Take exit 3 from the 101. Lft onto Hwy. 1, rt onto Etter, Rd lft onto East Uniacke Rd, Lft onto Nature Dr, Lft onto Loon Point, Lft onto Explorer Loop, Lft onto Lakewood
272 Lakewood Court East Uniacke

Inquire Today

Name is required.
Phone is required.
Valid email is required.
Message is required.
Please complete the captcha.
Powered By Realtor logo MLS® Listing data is provided by The Canadian Real Estate Association (CREA) and is deemed reliable but not guaranteed. The trademarks REALTOR®, REALTORS®, and the REALTOR® logo are controlled by CREA and identify real estate professionals who are members of CREA. The trademarks MLS®, Multiple Listing Service® and related logos are owned by CREA and identify the quality of services provided by real estate professionals who are members of CREA. Listing information is provided by participating real estate brokerages.