$579,900

48 Jessome Avenue

Lantz Nova Scotia B2S 0K6

Single Family
1558.0 square feet
3
2
MLS® 202602181
Listing Courtesy of Air Realty Limited

Description

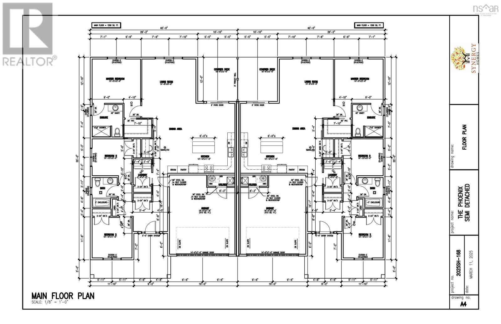
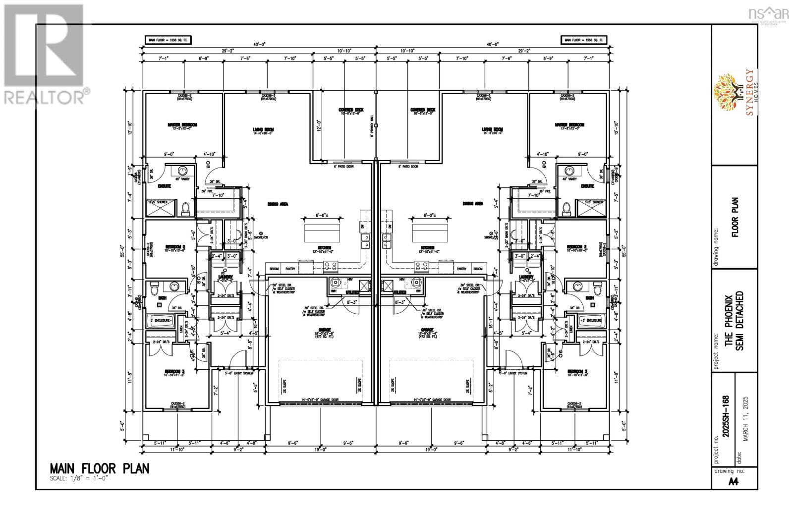
Synergy Homes is proud to introduce The Phoenix semi-detached home. The well-designed 3-bedroom, 2-bathroom semi-detached home offers comfortable single-level living with a bright, open-concept layout. The kitchen, dining, and living areas flow together seamlessly, creating an inviting space for everyday living and entertaining. A built-in desk nook adds valuable functionality for work, study, or household organization. The spacious primary suite includes a lovely ensuite and walk-in closet, while the two additional bedrooms provide flexibility for family, guests, or hobbies. Modern finishes and an efficient floor plan make this home an ideal choice for those seeking style, convenience, and low-maintenance living. Currently under construction - completion scheduled for the end of March 2026. (id:56844)

ID:
202602181
Category:
Single Family
Status:
Active
Living Area:
1558.0 square feet
Stories:
1.00
Bathrooms:
2
Bedrooms:
3
Lot:
0.2594 acres
MLS® Number:
202602181
Common Interest
Freehold
Parcel Number:
45442746
Year Built:
2026
Building Type:
House
Community Name:
Lantz
Days On Market:
114
Appliances
  • None
Cooling
  • Heat Pump
Foundationd Details:
  • Concrete Slab
Basement:
  • None
Exterior Features:
  • Vinyl
Flooring:
  • Tile
  • Laminate
Parking Features:
  • Attached Garage
  • Garage
  • Paved Yard
Structure Type:
  • House
Water Source:
  • Municipal water
Sewer:
  • Municipal sewage system
Kitchen 12.10x11
Foyer 9.2x8.8
Bedroom 10.10x11
Living room 14.8x16
Bath (# pieces 1-6) 8.7x7.1
Primary Bedroom 13.2x12
Ensuite (# pieces 2-6) 9.1x9
48 Jessome Lantz
Neighbourhood map for property at 48 Jessome Avenue
48 Jessome Avenue Lantz
Provincial Map showing 48 Jessome Avenue
48 Jessome Avenue Lantz

Inquire Today

Name is required.
Phone is required.
Valid email is required.
Message is required.
Please complete the captcha.
Powered By Realtor logo MLS® Listing data is provided by The Canadian Real Estate Association (CREA) and is deemed reliable but not guaranteed. The trademarks REALTOR®, REALTORS®, and the REALTOR® logo are controlled by CREA and identify real estate professionals who are members of CREA. The trademarks MLS®, Multiple Listing Service® and related logos are owned by CREA and identify the quality of services provided by real estate professionals who are members of CREA. Listing information is provided by participating real estate brokerages.

Similar Listings