$699,900

PUN-68B 170 Puncheon Way

Bedford Nova Scotia B4B 2K9

Single Family
2113.0 square feet
3
4/2
MLS® 202601418
Listing Courtesy of Royal LePage Atlantic

Description

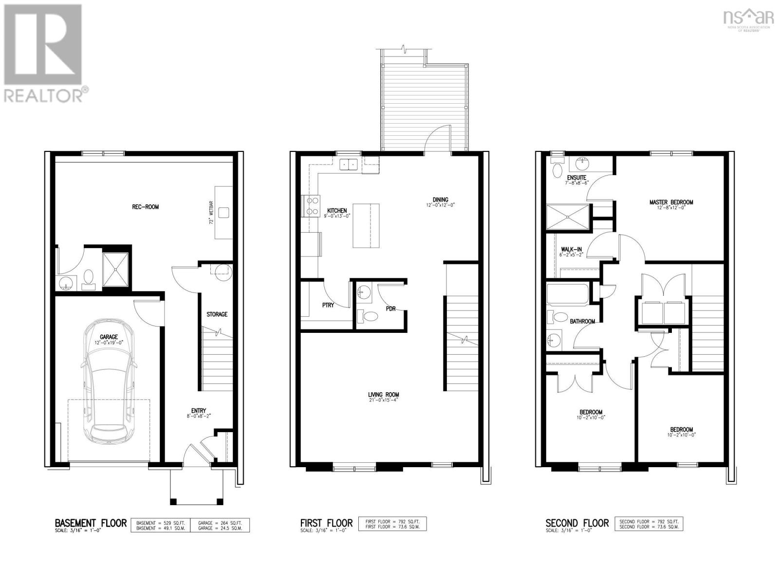
Welcome to the Nora model by Rooftight Homes, now available for pre-purchase in the upcoming newest phase of The Parks of West Bedford priced at just $699,900 for interior units! This stylish ground-level entry townhouse offers three thoughtfully designed levels of living, perfect for todays modern lifestyle. Enjoy a well appointed standard always delivered by Rooftight Homes. Two elegant hardwood staircases, and solid surface countertops in every spacedelivering both durability and contemporary flair. Stay comfortable year-round with efficient electric baseboard heat and ductless heat pump in the main living room. Garage level entry, the lower level is completed by a 3 piece bathroom, wet bar, and living room. The main level offers a classic Rooftight plan with room for kitchen with walk in pantry, dining room, powder room, and spacious living room. Upstairs are the bedrooms including the primary with en-suite, glass shower door, large walk in closer, and the laundry area, main bathroom, and two additional bedrooms. Buyers will appreciate the quality standard finishes. Discover the perfect blend of comfort, convenience, and customization in one of West Bedfords most desirable communities. (id:56844)

ID:
202601418
Category:
Single Family
Status:
Active
Living Area:
2113.0 square feet
Stories:
2.00
Bathrooms:
4
Bathrooms (partial):
2
Bedrooms:
3
Lot:
0.0723 acres
MLS® Number:
202601418
Common Interest
Freehold
Building Type:
Row / Townhouse
Community Name:
Bedford
Days On Market:
83
Appliances
  • Washer
  • Dryer - Electric
  • Refrigerator
  • Range - Electric
  • Dishwasher
Cooling
  • Wall unit
  • Heat Pump
Foundationd Details:
  • Poured Concrete
Basement:
  • Finished
  • Full
  • Walk out
Exterior Features:
  • Stone
  • Vinyl
Flooring:
  • Tile
  • Hardwood
  • Laminate
Parking Features:
  • Garage
  • Paved Yard
Structure Type:
  • Row / Townhouse
Water Source:
  • Municipal water
Sewer:
  • Municipal sewage system
Living room 21x15.4
Dining room 12x12
Kitchen 9x13
Bath (# pieces 1-6) 6x5.2
Primary Bedroom 12.8x12
Bath (# pieces 1-6) 7.8x8.6
Other Walk-in 6.2x5.2
Bedroom 10.2x10
Bedroom 10.2x10
Bath (# pieces 1-6) 6.8x8.6
Foyer 8x8.2
Recreational, Games room 11.4x12
Bath (# pieces 1-6) 6x5.2
Other Garage - 12x19
Larry Uteck to Brookline, left on Puncheon Way
Neighbourhood map for property at PUN-68B 170 Puncheon Way
PUN-68B 170 Puncheon Way Bedford
Provincial Map showing PUN-68B 170 Puncheon Way
PUN-68B 170 Puncheon Way Bedford

Inquire Today

Name is required.
Phone is required.
Valid email is required.
Message is required.
Please complete the captcha.
Powered By Realtor logo MLS® Listing data is provided by The Canadian Real Estate Association (CREA) and is deemed reliable but not guaranteed. The trademarks REALTOR®, REALTORS®, and the REALTOR® logo are controlled by CREA and identify real estate professionals who are members of CREA. The trademarks MLS®, Multiple Listing Service® and related logos are owned by CREA and identify the quality of services provided by real estate professionals who are members of CREA. Listing information is provided by participating real estate brokerages.

Similar Listings