$779,900

Lot 927 201 Brunello Boulevard

Brunello Estates Nova Scotia B3T 0J3

Single Family
2440.0 square feet
4
4/1
MLS® 202601088
Listing Courtesy of PLUMB LINE REALTY INC. - 12234

Description

Now completing interior finishes in this fabulous new home. A bright sunken foyer welcomes you to a lovely den/flex space ideal for a small home office. The spectacular Great Room has 9 ceilings & large windows, including a massive window in the kitchen making the most of natural light and views to the spacious backyard. A large island is ideal for gathering around to start your day, quartz countertops, a fantastic pantry, dining area and living space with access to take the entertaining outside to your deck. Convenience of a discrete powder room and access to the garage complete this level which features designer tile and hardwood floors. Providents penthouse primary suite is a true retreat with hardwood floors, a walk-in closet and spa-like ensuite with soaker tub, double raised underlit vanity and separate shower. Two nice size bedrooms, another full bath & laundry closet, provide a super functional upper floor. A rec room, 4th bedroom & 3rd full bath create a perfect space for guests downstairs which walks out to your yard. Completed with the comfort of heat pump heating and cooling. Additional lots and layouts available. Fantastic location in Brunello where residents enjoy walking the golf course trails, access to Nine Mile River, tennis, skating, cross country skiing, events at the club house (no membership required!), and super great access to Bayers Lake and downtown Halifax. The community is growing with new services and amenities all the time. Terrific lifestyle in a beautiful new home! Several of this style at different stages so you could customize finishes to suit your tastes. (id:56844)

ID:
202601088
Category:
Single Family
Status:
Active
Living Area:
2440.0 square feet
Stories:
2.00
Bathrooms:
4
Bathrooms (partial):
1
Bedrooms:
4
Lot:
0.113 acres
MLS® Number:
202601088
Common Interest
Freehold
Parcel Number:
41542200
Building Type:
House
Community Name:
Brunello Estates
Days On Market:
45
Lot Features
  • Level
Cooling
  • Heat Pump
Foundationd Details:
  • Poured Concrete
Basement:
  • Finished
  • Full
Exterior Features:
  • Brick
  • Vinyl
  • Other
Flooring:
  • Hardwood
  • Laminate
  • Ceramic Tile
Parking Features:
  • Garage
Structure Type:
  • House
Water Source:
  • Municipal water
Sewer:
  • Municipal sewage system
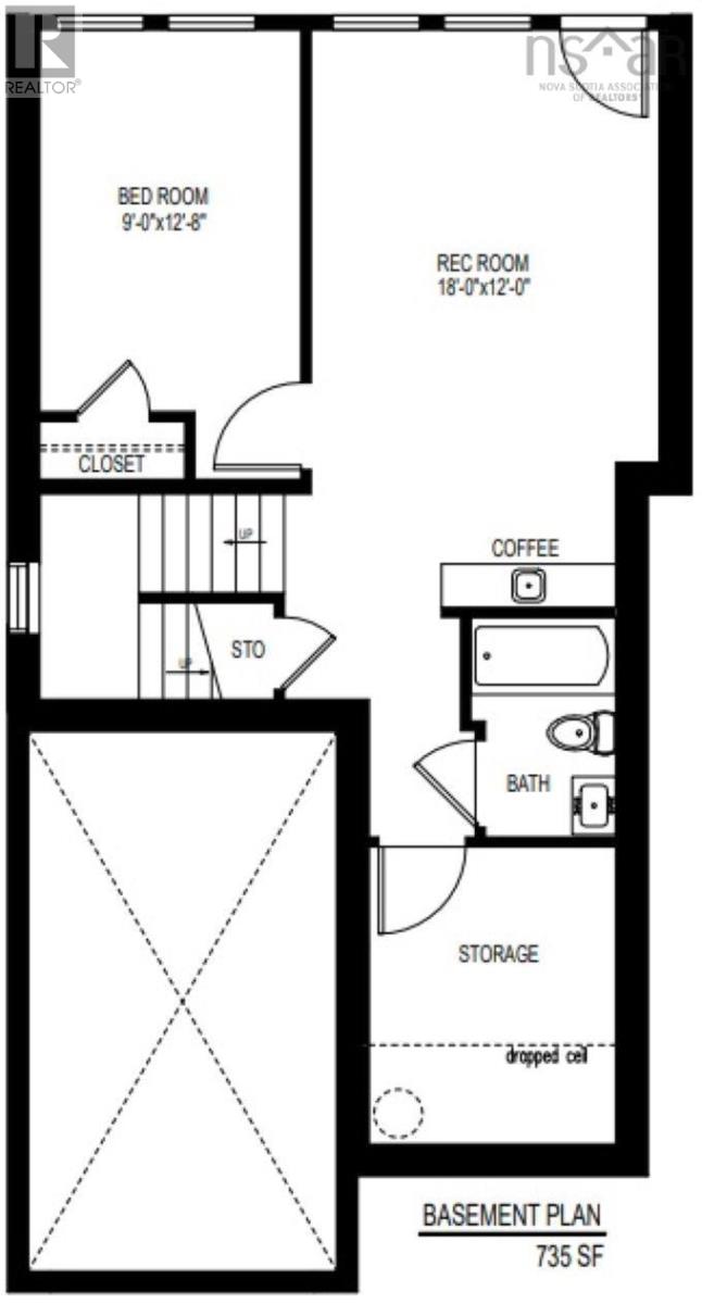
Kitchen 15.2x8.6
Great room 15.6x14.2
Den 9.6x5.6
Bath (# pieces 1-6) 5x4
Foyer 9x4
Primary Bedroom 15.6x14.2
Ensuite (# pieces 2-6) 12x8
Bedroom 11x10.8
Bedroom 11.2x9.8
Bath (# pieces 1-6) 8x5
Laundry room 6x5
Recreational, Games room 18x12
Bedroom 12.8x9
Bath (# pieces 1-6) 7x5
Timberlea Village Parkway to Brunello Blvd
Neighbourhood map for property at Lot 927 201 Brunello Boulevard
Lot 927 201 Brunello Boulevard Brunello Estates
Provincial Map showing Lot 927 201 Brunello Boulevard
Lot 927 201 Brunello Boulevard Brunello Estates

Inquire Today

Name is required.
Phone is required.
Valid email is required.
Message is required.
Please complete the captcha.
Powered By Realtor logo MLS® Listing data is provided by The Canadian Real Estate Association (CREA) and is deemed reliable but not guaranteed. The trademarks REALTOR®, REALTORS®, and the REALTOR® logo are controlled by CREA and identify real estate professionals who are members of CREA. The trademarks MLS®, Multiple Listing Service® and related logos are owned by CREA and identify the quality of services provided by real estate professionals who are members of CREA. Listing information is provided by participating real estate brokerages.