$729,900

Lot 5128 246 Orchid Court

Middle Sackville Nova Scotia B4E 3C3

Single Family
1951.0 square feet
4
3
MLS® 202600730
Listing Courtesy of Royal LePage Atlantic

Description

Join us every Saturday and Sunday from 2-4 pm at our Model Home at 451 Zaffre Drive to view our beautiful selections and to discuss a potential new build for you. Amara Developments is thrilled to introduce The Cortina in the newest phase of Indigo Shores in Middle Sackville, Nova Scotia. Discover The Cortina - the epitome of modern living in this stunning newly constructed modern craftsman split-entry home ideally located a short commute from the city yet nestled in a serene country setting, offering 3+1 bedrooms, 3 full baths, and an array of premium features and zen-factor. This brand-new design is an improvement in size from our popular Aspen plan and features a variety of compelling new qualities. A high-end kitchen awaits with stone counters, full-height cabinets, and soft-close drawers, while the bright living room invites relaxation with wide plank flooring. Luxurious touches abound, including a primary bedroom with a walk-in closet and an ensuite featuring a double floating vanity and custom shower. Contemporary finishes such as custom hardwood stairs, modern lighting, and designer tiles enhance the aesthetic, complemented by an energy-efficient heat pump. Additional highlights include an enhanced kitchen, a double-car garage, and a fourth bedroom in the basement with a full bath. Escape the ordinary and embrace modern comfort in the burbs discover all the details and features of this stunning home and private oasis. More house plans and lots to come! (id:56844)

ID:
202600730
Category:
Single Family
Status:
Active
Living Area:
1951.0 square feet
Stories:
1.00
Bathrooms:
3
Bedrooms:
4
Lot:
1.4666 acres
MLS® Number:
202600730
Common Interest
Freehold
Parcel Number:
41522384
Building Type:
House
Community Name:
Middle Sackville
Days On Market:
92
Cooling
  • Wall unit
  • Heat Pump
Architectural Style:
  • 2 Level
Foundationd Details:
  • Poured Concrete
Exterior Features:
  • Vinyl
Flooring:
  • Laminate
  • Ceramic Tile
Parking Features:
  • Attached Garage
  • Garage
Structure Type:
  • House
Water Source:
  • Drilled Well
Sewer:
  • Septic System
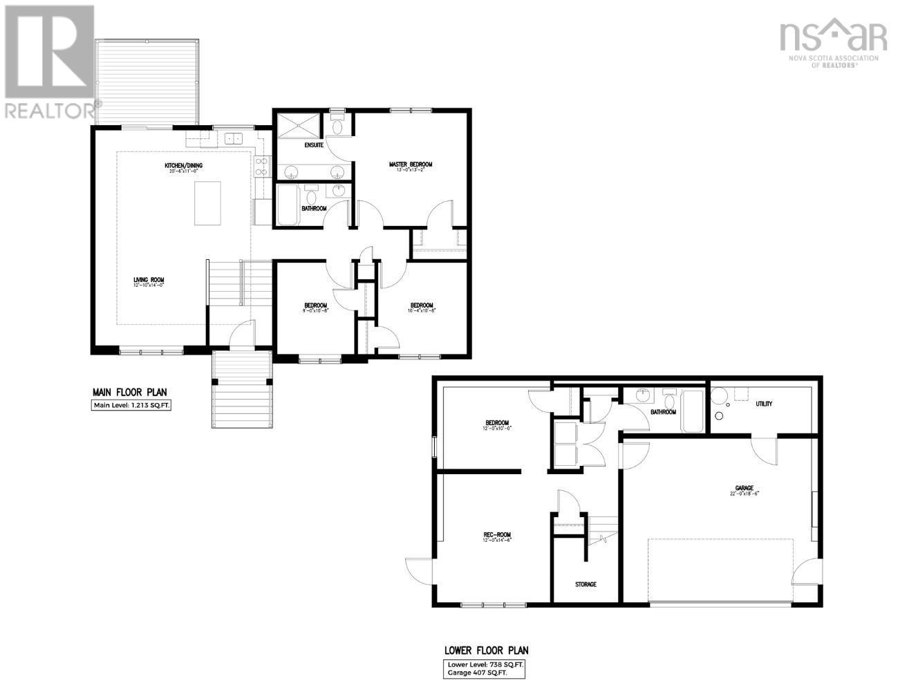
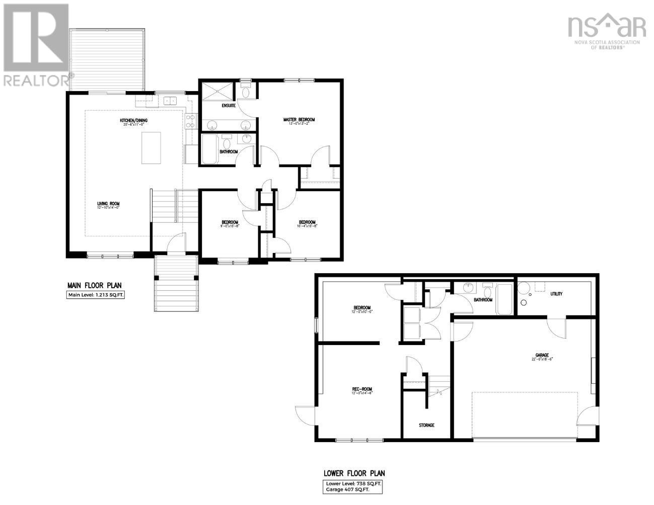
Bedroom 10.4 x 10.8
Bedroom 9. x 10.8
Ensuite (# pieces 2-6) N/A
Primary Bedroom 13. x 13.2
Bath (# pieces 1-6) N/A
Eat in kitchen 20.6 x 11
Living room 12.10 x 14
Bath (# pieces 1-6) N/A
Other 22. x 18.6 - GARAGE
Utility room N/A
Bedroom 9. x 5.6
Bedroom 12. x 10
Recreational, Games room 12. x 14.6
NS-102, take exit 4B, then exit 2A, stay on Margeson Dr, right onto Midnight Run, left on Gaspereau, right onto Bondi Dr, right onto Zaffre Dr
Neighbourhood map for property at Lot 5128 246 Orchid Court
Lot 5128 246 Orchid Court Middle Sackville
Provincial Map showing Lot 5128 246 Orchid Court
Lot 5128 246 Orchid Court Middle Sackville

Inquire Today

Name is required.
Phone is required.
Valid email is required.
Message is required.
Please complete the captcha.
Powered By Realtor logo MLS® Listing data is provided by The Canadian Real Estate Association (CREA) and is deemed reliable but not guaranteed. The trademarks REALTOR®, REALTORS®, and the REALTOR® logo are controlled by CREA and identify real estate professionals who are members of CREA. The trademarks MLS®, Multiple Listing Service® and related logos are owned by CREA and identify the quality of services provided by real estate professionals who are members of CREA. Listing information is provided by participating real estate brokerages.

Similar Listings