$599,000

7600 Highway 7 Highway

Goldenville Nova Scotia B0J 3C0

Single Family
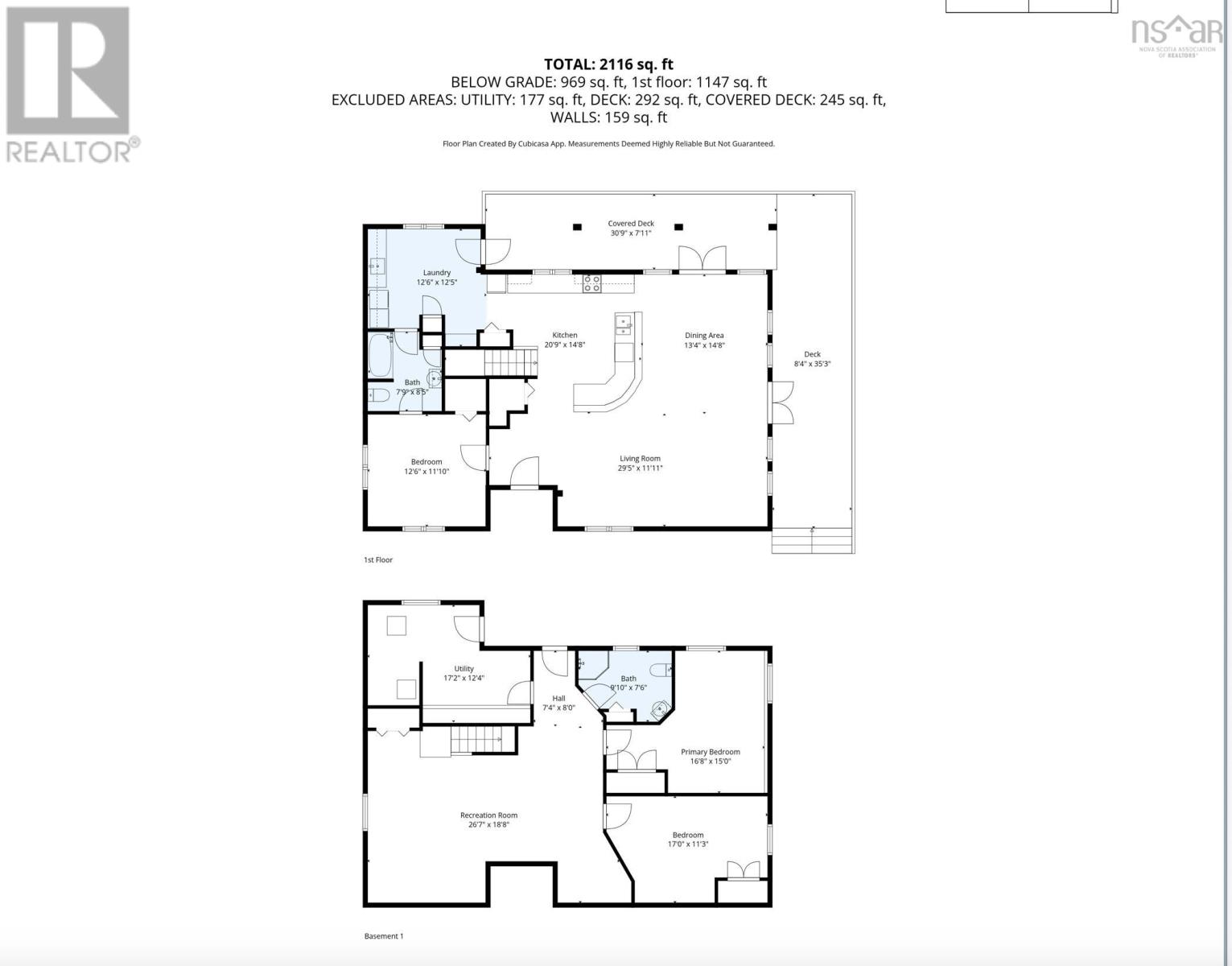
2116.0 square feet
3
2
MLS® 202600530
Listing Courtesy of Re/Max Park Place Inc. (Antigonish)

Description

This beautifully maintained three-bedroom, two-bathroom Dow and Duggan log home sits on a private, well-manicured 2.83-acre property just outside Sherbrooke, Nova Scotia. With 230 feet of waterfront on the St. Marys River, this property is perfect as a vacation home or year-round residence. The open-concept great room includes a large living/dining space and kitchen with generous ceramic counter space and cupboards. Enjoy stunning views from the many floor-to-ceiling windows and three separate walkouts to the large wrap-around deck. The deck is ideal for enjoying breathtaking sunrises and river views with your morning coffee or evening barbecues. All rooms on the main level feature post-and-beam style vaulted ceilings, providing an elegant setting for family memories. This level also includes a convenient laundry area and a breakfast nook. A walkout lower level boasts two large bedrooms, one full bathroom, and a recreation room anchored by a warm wood-burning stove for cozy evenings. Outdoor & Location The property features direct river access for swimming, boating, and fishing. The grounds include outdoor fire pits, ample parking spaces, and landscaped areas designed for relaxation and play. 5 Minutes: Sherbrooke shops, schools, recreation center, and medical services. 15 Minutes: Atlantic Ocean beaches. 40 Minutes: Antigonish. (id:56844)

ID:
202600530
Category:
Single Family
Status:
Active
Living Area:
2116.0 square feet
Stories:
1.00
Bathrooms:
2
Bedrooms:
3
Lot:
2.83 acres
MLS® Number:
202600530
Common Interest
Freehold
Parcel Number:
35168327
Year Built:
1999
Building Type:
House
Community Name:
Goldenville
Days On Market:
95
View
  • River view
Lot Features
  • Sloping
Water Front Features
  • Waterfront on river
Community Features
  • School Bus
  • Recreational Facilities
Appliances
  • Washer
  • Dryer - Electric
  • Refrigerator
  • Water purifier
  • Barbeque
  • Range - Electric
  • Dishwasher
Architectural Style:
  • 2 Level
Basement:
  • Finished
  • Full
  • Walk out
Exterior Features:
  • Log
Flooring:
  • Laminate
  • Engineered hardwood
  • Ceramic Tile
  • Linoleum
  • Vinyl
Parking Features:
  • Gravel
Structure Type:
  • House
Water Source:
  • Dug Well
Sewer:
  • Septic System
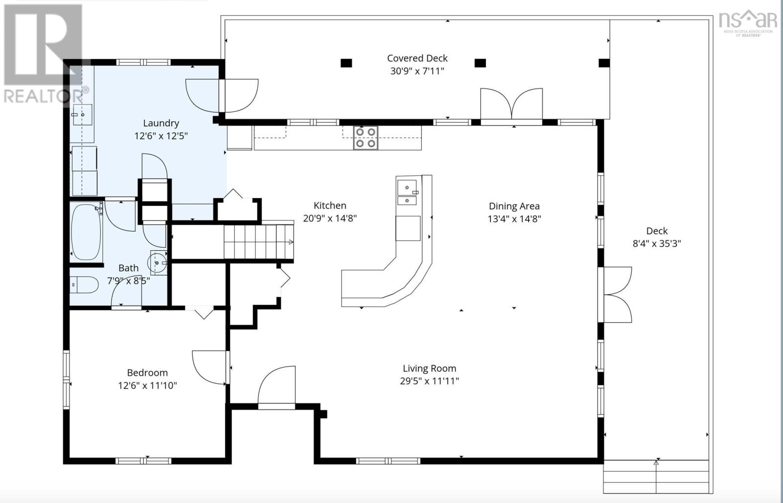
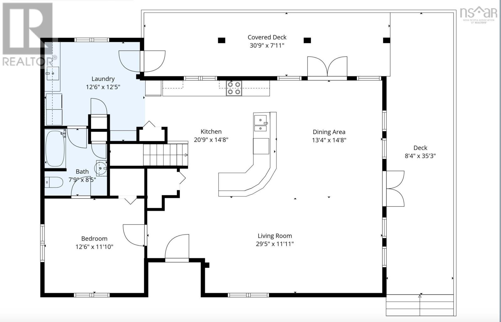
Living room 29.5 x 11.1
Dining room 13.4 x 14.8
Kitchen 20.9 x 14.8
Laundry / Bath 12.6 x 12.5
Bath (# pieces 1-6) 7.9 x 8.5
Primary Bedroom 12.6 x 11.10
Recreational, Games room 26.7 x 18.8
Bath (# pieces 1-6) 9.10 x 7.6
Bedroom 17.0 x 11.3
Bedroom 16.8 x 15.0
Utility room 17.2 x 12.4
Just outside of Sherbrooke on water side towards Goldenville. Sign on
Neighbourhood map for property at 7600 Highway 7 Highway
7600 Highway 7 Highway Goldenville
Provincial Map showing 7600 Highway 7 Highway
7600 Highway 7 Highway Goldenville

Inquire Today

Name is required.
Phone is required.
Valid email is required.
Message is required.
Please complete the captcha.
Powered By Realtor logo MLS® Listing data is provided by The Canadian Real Estate Association (CREA) and is deemed reliable but not guaranteed. The trademarks REALTOR®, REALTORS®, and the REALTOR® logo are controlled by CREA and identify real estate professionals who are members of CREA. The trademarks MLS®, Multiple Listing Service® and related logos are owned by CREA and identify the quality of services provided by real estate professionals who are members of CREA. Listing information is provided by participating real estate brokerages.

Similar Listings