Description
This beautifully maintained three-bedroom, two-bathroom Dow and Duggan log home sits on a private, well-manicured 2.83-acre property just outside Sherbrooke, Nova Scotia. With 230 feet of waterfront on the St. Marys River, this property is perfect as a vacation home or year-round residence. The open-concept great room includes a large living/dining space and kitchen with generous ceramic counter space and cupboards. Enjoy stunning views from the many floor-to-ceiling windows and three separate walkouts to the large wrap-around deck. The deck is ideal for enjoying breathtaking sunrises and river views with your morning coffee or evening barbecues. All rooms on the main level feature post-and-beam style vaulted ceilings, providing an elegant setting for family memories. This level also includes a convenient laundry area and a breakfast nook. A walkout lower level boasts two large bedrooms, one full bathroom, and a recreation room anchored by a warm wood-burning stove for cozy evenings. Outdoor & Location The property features direct river access for swimming, boating, and fishing. The grounds include outdoor fire pits, ample parking spaces, and landscaped areas designed for relaxation and play. 5 Minutes: Sherbrooke shops, schools, recreation center, and medical services. 15 Minutes: Atlantic Ocean beaches. 40 Minutes: Antigonish. (id:56844)
- ID:
- 202600530
- Category:
- Single Family
- Status:
- Active
- Living Area:
- 2116.0 square feet
- Stories:
- 1.00
- Bathrooms:
- 2
- Bedrooms:
- 3
- Lot:
- 2.83 acres
- MLS® Number:
- 202600530
- Common Interest
- Freehold
- Parcel Number:
- 35168327
- Year Built:
- 1999
- Building Type:
- House
- Community Name:
- Goldenville
- Days On Market:
- 5
- River view
- Sloping
- Waterfront on river
- School Bus
- Recreational Facilities
- Washer
- Dryer - Electric
- Refrigerator
- Water purifier
- Barbeque
- Range - Electric
- Dishwasher
- 2 Level
- Finished
- Full
- Walk out
- Log
- Laminate
- Engineered hardwood
- Ceramic Tile
- Linoleum
- Vinyl
- Gravel
- House
- Dug Well
- Septic System
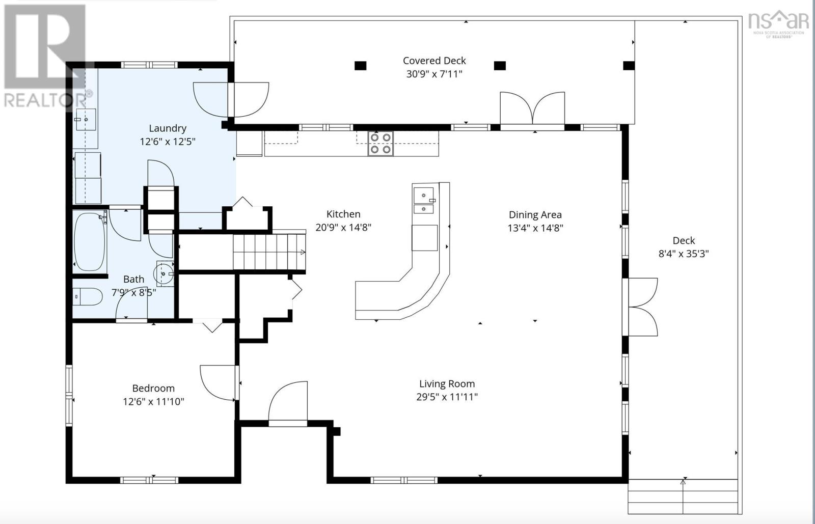
| Living room | 29.5 x 11.1 | |
| Dining room | 13.4 x 14.8 | |
| Kitchen | 20.9 x 14.8 | |
| Laundry / Bath | 12.6 x 12.5 | |
| Bath (# pieces 1-6) | 7.9 x 8.5 | |
| Primary Bedroom | 12.6 x 11.10 |
| Recreational, Games room | 26.7 x 18.8 | |
| Bath (# pieces 1-6) | 9.10 x 7.6 | |
| Utility room | 17.2 x 12.4 | |
| Bedroom | 16.8 x 15.0 | |
| Bedroom | 17.0 x 11.3 |