$234,999

49 Haven Drive

Bridgewater Nova Scotia B4V 3X2

Single Family
896.0 square feet
3
1
MLS® 202529749
Listing Courtesy of EXIT Realty Inter Lake

Description

Welcome to 49 Haven Drive, a beautifully maintained mini home that truly feels like home the moment you step inside. This well-cared-for property features gorgeous hardwood floors and tasteful décor throughout, creating a warm and inviting atmosphere. The home borders green space, offering added privacy and a peaceful setting to enjoy. Pride of ownership is evident with recent deck, shed, and skirting repairs, ensuring the exterior is just as solid as it is attractive. The home is equipped with efficient heat pumps providing both heating and air conditioning, offering year-round comfort. Clean, move-in ready, and lovingly maintained, this is a fantastic opportunity for anyone looking for a home that has been thoughtfully cared for inside and out. (id:56844)

ID:
202529749
Category:
Single Family
Status:
Active
Living Area:
896.0 square feet
Stories:
1.00
Bathrooms:
1
Bedrooms:
3
MLS® Number:
202529749
Common Interest
Leasehold
Year Built:
1999
Building Type:
Mobile Home
Community Name:
Bridgewater
Days On Market:
106
Lot Features
  • Level
Cooling
  • Heat Pump
Architectural Style:
  • Mini
Basement:
  • None
Exterior Features:
  • Vinyl
Flooring:
  • Hardwood
  • Laminate
Parking Features:
  • Paved Yard
Structure Type:
  • Mobile Home
Water Source:
  • Municipal water
Sewer:
  • Municipal sewage system
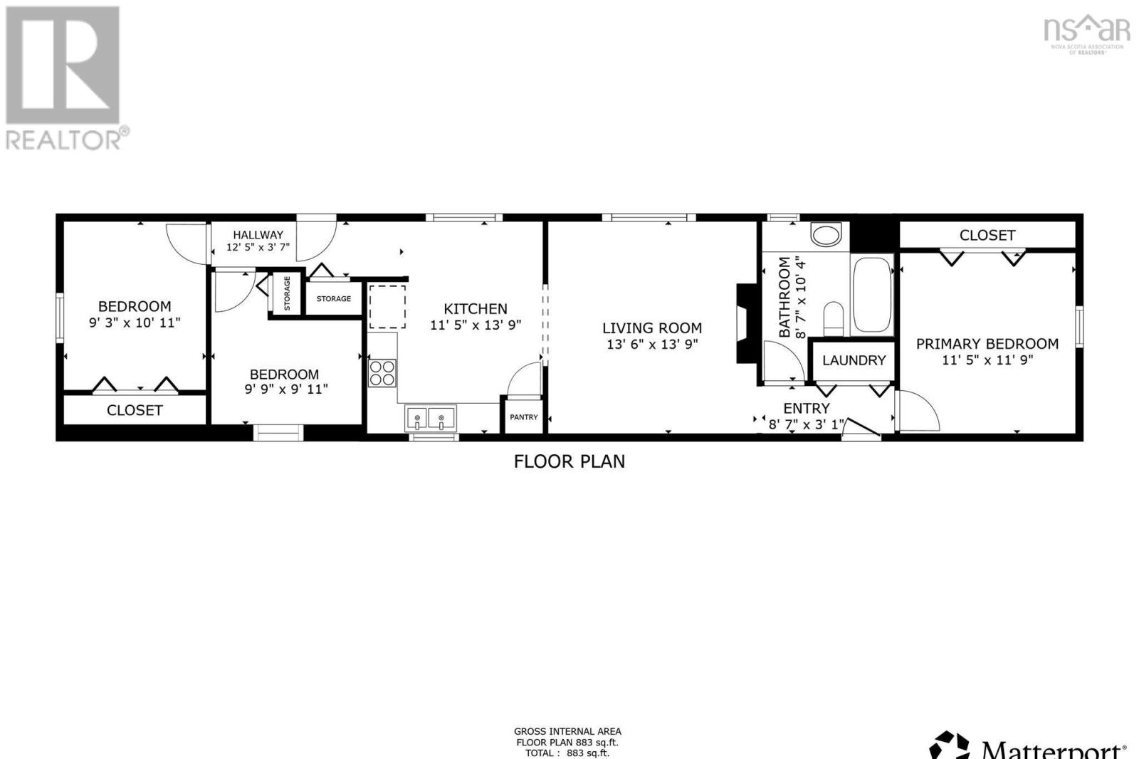
Living room 13 x 13
Kitchen 11 x 13
Bath (# pieces 1-6) 9.10 x 8.2
Bedroom 11 x 9
Family room 11 x 9
Den 9.9 x 9
Primary Bedroom 11.2 x 11
North Street Bridgewater, to Haven Drive (Lahave Heights). Home second block on left.
Neighbourhood map for property at 49 Haven Drive
49 Haven Drive Bridgewater
Provincial Map showing 49 Haven Drive
49 Haven Drive Bridgewater

Inquire Today

Name is required.
Phone is required.
Valid email is required.
Message is required.
Please complete the captcha.
Powered By Realtor logo MLS® Listing data is provided by The Canadian Real Estate Association (CREA) and is deemed reliable but not guaranteed. The trademarks REALTOR®, REALTORS®, and the REALTOR® logo are controlled by CREA and identify real estate professionals who are members of CREA. The trademarks MLS®, Multiple Listing Service® and related logos are owned by CREA and identify the quality of services provided by real estate professionals who are members of CREA. Listing information is provided by participating real estate brokerages.

Similar Listings