$629,900

Unit 210 Hybrid Lane

East Uniacke Nova Scotia B0N 1Z0

Single Family
1574.0 square feet
3
2
MLS® 202529560
Listing Courtesy of Royal LePage Atlantic - Valley(Windsor)

Description

Luxury living in Cottage Country awaits! Located on a 1.3 acre lot in East Uniacke, this designer 3 bedroom, 2 bath home is currently under construction and just minutes from Long Lakes boat launch, dock, and scenic trails. Inside, youll be greeted by an open concept living area featuring 9 ft ceilings throughout and designer lighting that elevates every room. The custom kitchen with a walk-in pantry and laundry room is open to the living room, complete with a cozy propane fireplace. The primary suite provides a private retreat with its own full ensuite bath, while two additional large bedrooms and a full bath are thoughtfully located on the opposite side of the home. The home is crafted with universal design principles and ensures comfort and accessibility for all. Step outside to your back deck overlooking peaceful nature. Enjoy modern conveniences including heat pumps and an electric vehicle charging station. The condo fee covers snow removal and garbage collection, offering low-maintenance living. You will love the optional 18x24 weather tight detached garage that can be added to the purchase. Adventure is right at your doorstep with swimming, fishing, and boating at Long Lake and exploring groomed hiking trails. This home truly has it all, offering quiet country living with the convenience of being less than 30 minutes from all amenities in HRM. (id:56844)

ID:
202529560
Category:
Single Family
Status:
Active
Living Area:
1574.0 square feet
Stories:
1.00
Bathrooms:
2
Bedrooms:
3
Lot:
1.3 acres
MLS® Number:
202529560
Common Interest
Condo/Strata
Parcel Number:
45434966
Community Name:
East Uniacke
Days On Market:
73
Cooling
  • Heat Pump

Condo

Association Fee:
$50
Fee Frequency:
Monthly
Association Name:
Condo Corp # 6
Architectural Style:
  • Bungalow
Foundationd Details:
  • Concrete Slab
  • Poured Concrete
Basement:
  • None
Exterior Features:
  • Vinyl
  • Aluminum siding
Flooring:
  • Hardwood
  • Engineered hardwood
Parking Features:
  • Gravel
Water Source:
  • Drilled Well
  • Well
Sewer:
  • Septic System
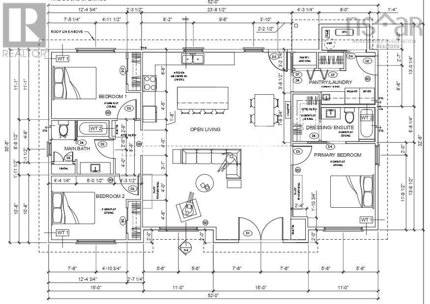
Great room 23.8 x 26.10
Primary Bedroom 11 x 13.9
Ensuite (# pieces 2-6) 4pc 8 x 5.8
Laundry room 8 x 7.1
Bedroom 12.4 x 11.1
Bedroom 12.4 x 10.8
Bath (# pieces 1-6) 4pc 6.9 x 7.5
East Uniacke Rd to Nature Dr, left on Village Dr, left on Hybrid Ln.
Neighbourhood map for property at Unit 210 Hybrid Lane
Unit 210 Hybrid Lane East Uniacke
Provincial Map showing Unit 210 Hybrid Lane
Unit 210 Hybrid Lane East Uniacke

Inquire Today

Name is required.
Phone is required.
Valid email is required.
Message is required.
Please complete the captcha.
Powered By Realtor logo MLS® Listing data is provided by The Canadian Real Estate Association (CREA) and is deemed reliable but not guaranteed. The trademarks REALTOR®, REALTORS®, and the REALTOR® logo are controlled by CREA and identify real estate professionals who are members of CREA. The trademarks MLS®, Multiple Listing Service® and related logos are owned by CREA and identify the quality of services provided by real estate professionals who are members of CREA. Listing information is provided by participating real estate brokerages.