$844,900

LW14 209 Lewis Drive

West Bedford Nova Scotia B4B 0L3

Single Family
2537.0 square feet
4
4/1
MLS® 202529247
Listing Courtesy of Royal LePage Atlantic

Description

**Ready to move in by February 28, 2026** Introducing The Bellmore, a beautifully crafted 4-bedroom, 3.5-bath detached home byShaughnessy Homes in Belle Rose Park, West Bedford. Spanning 2,537 sq. ft. across three finished levels on a 34 lot, this homeblends modern style with everyday functionality. The main floor features an open-concept layout with a designer kitchen boasting awalk-in pantry, premium quartz countertops, and soft-close cabinetry. A stylish dining room bump-out adds a touch of elegance,perfect for gatherings. Engineered hardwood flows through the main and upper levels, complemented by an electric fireplace in theliving area. Step outside to a beautifully finished composite deck, providing long-lasting durability with low maintenance. The finishedbasement, with durable laminate flooring, offers flexible space for family or guests. If youre looking for a walk-out basement equippedwith a wet bar, washer and dryer rough in, bedroom, bathroom and a rec room - we have a limited number of The Bellmore walkoutmodels for $859,900, perfect for extended members of the family. Both versions include a fully ducted heat pump with natural gasbackup, plus rough-ins for a gas range, dryer, BBQ, water heater, and a 50 AMP EV charger. Nestled off Larry Uteck Blvd in theserene Belle Rose Park, this home is steps from schools, parks, and amenities. Built with Shaughnessy Homes signature quality,The Bellmore is a rare find in one of Bedfords most desirable communities. (id:56844)

ID:
202529247
Category:
Single Family
Status:
Active
Living Area:
2537.0 square feet
Stories:
2.00
Bathrooms:
4
Bathrooms (partial):
1
Bedrooms:
4
Lot:
0.1057 acres
MLS® Number:
202529247
Common Interest
Freehold
Parcel Number:
41547472
Year Built:
2025
Building Type:
House
Community Name:
West Bedford
Days On Market:
127
Community Features
  • School Bus
  • Recreational Facilities
Appliances
  • None
Cooling
  • Heat Pump
Foundationd Details:
  • Poured Concrete
Exterior Features:
  • Stone
  • Vinyl
Flooring:
  • Tile
  • Laminate
  • Engineered hardwood
Parking Features:
  • Garage
  • Paved Yard
Structure Type:
  • House
Water Source:
  • Municipal water
Sewer:
  • Municipal sewage system
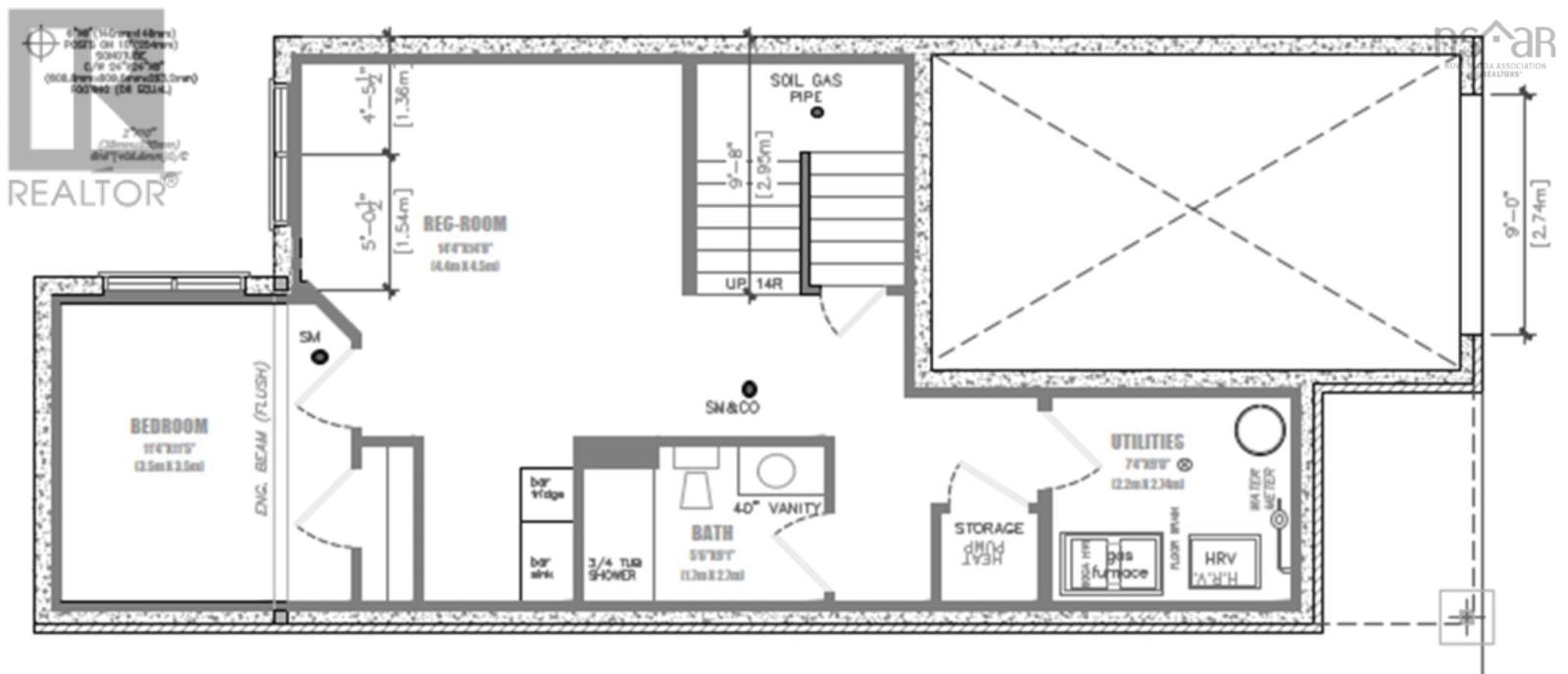
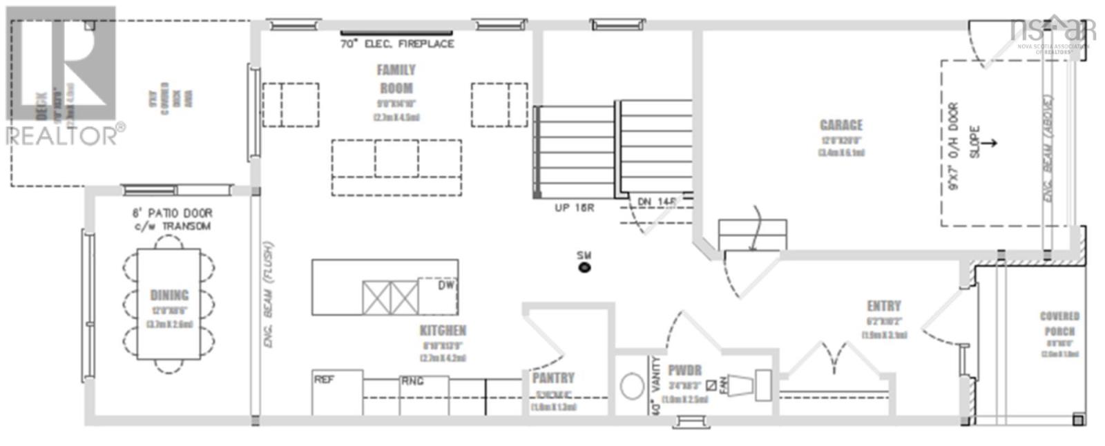
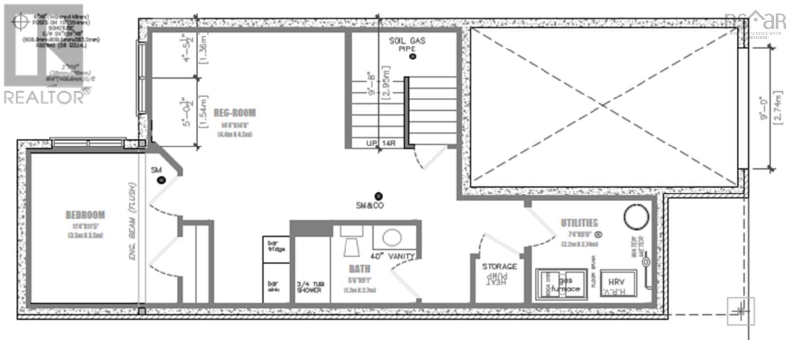
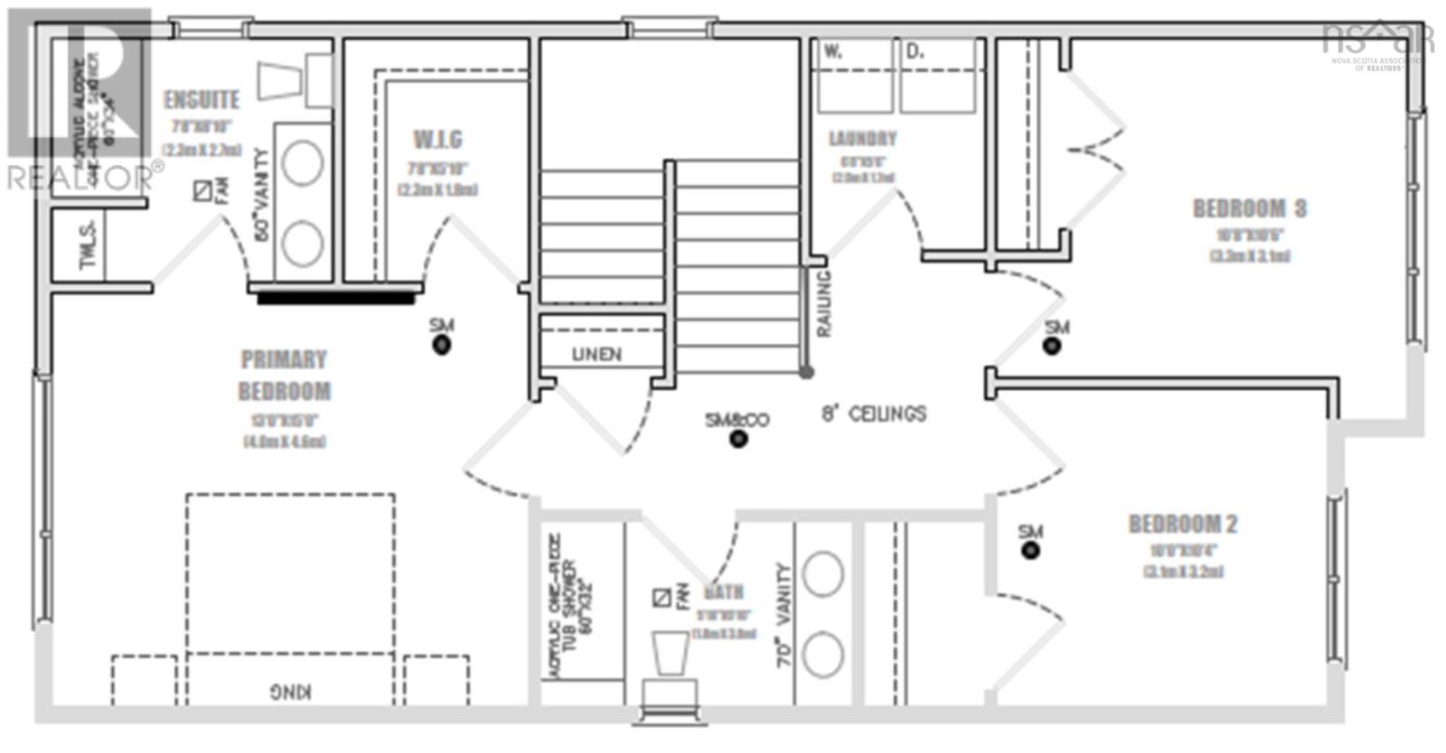
Foyer 6.2 x 10.2
Bath (# pieces 1-6) 2 Piece
Living room 9 x 14.1
Dining room 12 x 8.6
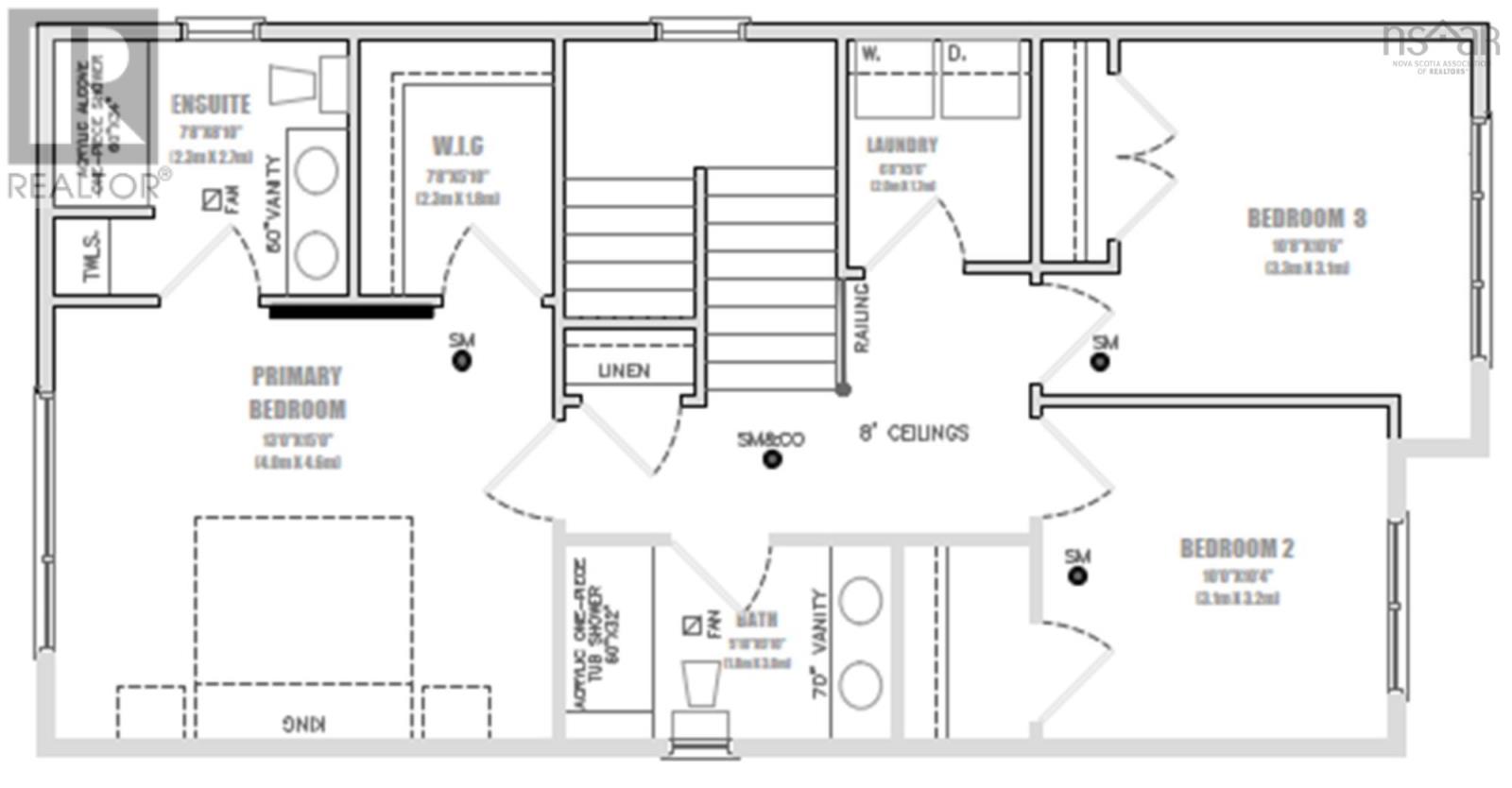
Primary Bedroom 13 x 15
Ensuite (# pieces 2-6) 5 Piece
Bedroom 10.8 x 10.6
Bedroom 10 x 10.4
Bath (# pieces 1-6) 4 Piece
Laundry room 6.8 x 5.6
Kitchen 8.1 x 13.9
Recreational, Games room 14.4 x 14.8
Bedroom 11.4 x 11.5
Bath (# pieces 1-6) 4 Piece
Hammonds Plains rd to Lewis Dr
Neighbourhood map for property at LW14 209 Lewis Drive
LW14 209 Lewis Drive West Bedford
Provincial Map showing LW14 209 Lewis Drive
LW14 209 Lewis Drive West Bedford

Inquire Today

Name is required.
Phone is required.
Valid email is required.
Message is required.
Please complete the captcha.
Powered By Realtor logo MLS® Listing data is provided by The Canadian Real Estate Association (CREA) and is deemed reliable but not guaranteed. The trademarks REALTOR®, REALTORS®, and the REALTOR® logo are controlled by CREA and identify real estate professionals who are members of CREA. The trademarks MLS®, Multiple Listing Service® and related logos are owned by CREA and identify the quality of services provided by real estate professionals who are members of CREA. Listing information is provided by participating real estate brokerages.

Similar Listings