$859,900

LW13 205 Lewis Drive

Bedford Nova Scotia B4B 0L3

Single Family
2537.0 square feet
4
4/1
MLS® 202529242
Listing Courtesy of Royal LePage Atlantic

Description

**Ready to move in by February 28, 2026** Introducing The Bellmore, a beautifully crafted 4-bedroom, 3.5-bath detached home by Shaughnessy Homes in Belle Rose Park, West Bedford. Spanning 2,537 sq. ft. across three finished levels on a 34 lot, this home blends modern style with everyday functionality. The main floor features an open-concept layout with a designer kitchen boasting a walk-in pantry, premium quartz countertops, and soft-close cabinetry. A stylish dining room bump-out adds a touch of elegance, perfect for gatherings. Engineered hardwood flows through the main and upper levels, complemented by an electric fireplace in the living area. Step outside to a beautifully finished composite deck, providing long-lasting durability with low maintenance. The finished WALKOUT basement is equipped with a wet bar, large bedroom, full bathroom and a spacious rec room perfect for extended family members. This home includes a fully ducted heat pump with natural gas backup, plus rough-ins for a gas range, dryer, BBQ, water heater, and a 50 AMP EV charger. Nestled off Larry Uteck Blvd in the serene Belle Rose Park, this home is steps from schools, parks, and amenities. Built with Shaughnessy Homes signature quality, The Bellmore is a rare find in one of Bedfords most desirable communities. (id:56844)

ID:
202529242
Category:
Single Family
Status:
Active
Living Area:
2537.0 square feet
Stories:
2.00
Bathrooms:
4
Bathrooms (partial):
1
Bedrooms:
4
Lot:
0.1046 acres
MLS® Number:
202529242
Common Interest
Freehold
Parcel Number:
41547464
Building Type:
House
Community Name:
Bedford
Days On Market:
138
Community Features
  • School Bus
  • Recreational Facilities
Appliances
  • None
Cooling
  • Heat Pump
Foundationd Details:
  • Poured Concrete
Exterior Features:
  • Stone
  • Vinyl
Flooring:
  • Tile
  • Laminate
  • Engineered hardwood
Parking Features:
  • Garage
  • Paved Yard
Structure Type:
  • House
Water Source:
  • Municipal water
Sewer:
  • Municipal sewage system
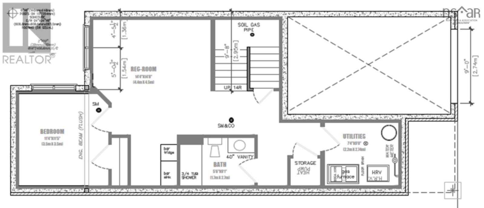
Foyer 6.2 x 10.2
Bath (# pieces 1-6) 2 pc
Living room 9x14
Dining room 12x8.6
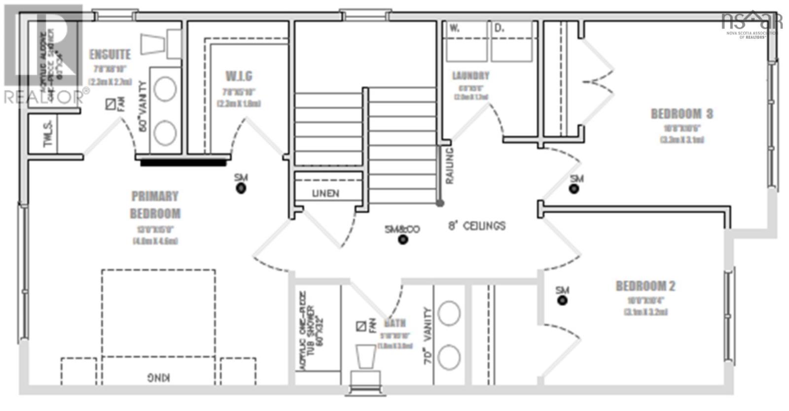
Primary Bedroom 13x15
Ensuite (# pieces 2-6) 5 pc
Bedroom 10.8 x 10.6
Bedroom 10x10.4
Bath (# pieces 1-6) 4 pc
Laundry room 6.8x 5.6
Kitchen 8.1x13.9
Recreational, Games room 14.4X14.8
Bedroom 11.4X11.5
Bath (# pieces 1-6) 4 pc
Hammonds Plains to Lewis Drive
Neighbourhood map for property at LW13 205 Lewis Drive
LW13 205 Lewis Drive Bedford
Provincial Map showing LW13 205 Lewis Drive
LW13 205 Lewis Drive Bedford

Inquire Today

Name is required.
Phone is required.
Valid email is required.
Message is required.
Please complete the captcha.
Powered By Realtor logo MLS® Listing data is provided by The Canadian Real Estate Association (CREA) and is deemed reliable but not guaranteed. The trademarks REALTOR®, REALTORS®, and the REALTOR® logo are controlled by CREA and identify real estate professionals who are members of CREA. The trademarks MLS®, Multiple Listing Service® and related logos are owned by CREA and identify the quality of services provided by real estate professionals who are members of CREA. Listing information is provided by participating real estate brokerages.

Similar Listings