$475,000

75 Danica Drive

Pine Grove Nova Scotia B4V 7Z2

Single Family
1026.0 square feet
2
1
MLS® 202527228
Listing Courtesy of EXIT Realty Inter Lake

Description

Location, location location!!! Would you like to live within 5 mins to Bridgewater in a one level home? This may be the home for you. This 2 bed, 1 bath home has been designed with retirement in mind. Infloor heat, wider doors throughout, triple pane windows in the main part of the house, new appliances and ready for its new owners. Tucked away at the end of a subdivision is where you will find it. Well, septic etc were all installed in the past 1.5 years. (id:56844)

ID:
202527228
Category:
Single Family
Status:
Active
Living Area:
1026.0 square feet
Stories:
1.00
Bathrooms:
1
Bedrooms:
2
Lot:
2.55 acres
MLS® Number:
202527228
Common Interest
Freehold
Parcel Number:
60640307
Year Built:
2009
Building Type:
House
Community Name:
Pine Grove
Days On Market:
162
Lot Features
  • Treed
  • Level
Community Features
  • School Bus
Appliances
  • Refrigerator
  • Dishwasher
  • Range
  • Microwave
Architectural Style:
  • Bungalow
Foundationd Details:
  • Concrete Slab
Basement:
  • None
Exterior Features:
  • Other
Flooring:
  • Ceramic Tile
  • Vinyl Plank
Parking Features:
  • Attached Garage
  • Garage
  • Gravel
Structure Type:
  • House
Water Source:
  • Drilled Well
Sewer:
  • Septic System
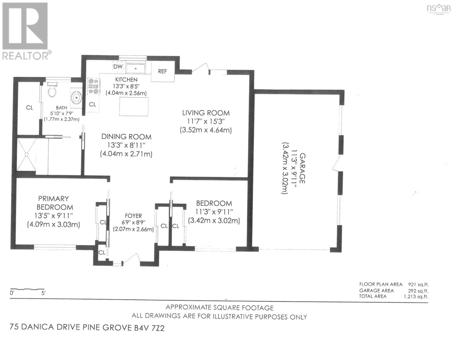
Foyer 6.4 x 8.10+3.8 x 8.7
Eat in kitchen 13 x 16.9
Living room 12 x 14.7
Bedroom 11.5 x 9.10+3.7 x 2.3
Bedroom 9. x 9.10+2.3 x 3.7
Bath (# pieces 1-6) 5.7 x 7.5 + 5.4 x 9.7
Utility room 4.3 x 9
From Hwy 10 turn onto Cooks Lane, by RCMP, follow to end, turn right onto Harold Whynot Rd, follow to Danica Dr, go to end.
Neighbourhood map for property at 75 Danica Drive
75 Danica Drive Pine Grove
Provincial Map showing 75 Danica Drive
75 Danica Drive Pine Grove

Inquire Today

Name is required.
Phone is required.
Valid email is required.
Message is required.
Please complete the captcha.
Powered By Realtor logo MLS® Listing data is provided by The Canadian Real Estate Association (CREA) and is deemed reliable but not guaranteed. The trademarks REALTOR®, REALTORS®, and the REALTOR® logo are controlled by CREA and identify real estate professionals who are members of CREA. The trademarks MLS®, Multiple Listing Service® and related logos are owned by CREA and identify the quality of services provided by real estate professionals who are members of CREA. Listing information is provided by participating real estate brokerages.

Similar Listings