$599,000

Lot 7 Dark Pond Lane

West Petpeswick Nova Scotia B0J 2L0

Single Family
1600.0 square feet
3
4/1
MLS® 202525086
Listing Courtesy of Royal LePage Atlantic

Description

Your deram likeside home! We are breaking ground in just a few weeks, this stunning new construction offers 1,600 square feet of thoughtfully designed living space in a classic bungalow style. Perfectly positioned on a beautiful lake and less than 1 km from the ocean, this home combines the best of lakeside serenity with seaside charmall just 30 minutes from downtown Halifax. Every detail of this 3-bedroom, 3.5-bath home has been carefully crafted to maximize comfort, style, and breathtaking views from the wall of windows at the back which lead out to your sun drenched patio!. Imagine waking up each morning to sparkling lake vistas from your bedroom, enjoying soaring vaulted ceilings, a spacious kitchen with a large island, and a luxurious primary suite featuring a walk-in closet and spa-like ensuite. Each bedroom has its own private bath, ensuring convenience and privacy for family and guests alike. Located in an exclusive subdivision of only 22 lots, Miners Ridge is protected by restrictive covenants, youll enjoy lasting peace, privacy, and timeless beauty. The welcoming community of West Petpeswick / Musquodobiot offers everything you needpublic wharf and beach, a sailing club, schools, shops, restaurants, and nearby hospitalwhile maintaining a quiet, coastal lifestyle. Floorplans are available, and now is the perfect time to make this home uniquely yours with custom upgrades, colours, and finishes. Dont miss this rare opportunity to create your dream home by the waterready for you to move in by Spring 2026! (id:56844)

ID:
202525086
Category:
Single Family
Status:
Active
Living Area:
1600.0 square feet
Stories:
1.00
Bathrooms:
4
Bathrooms (partial):
1
Bedrooms:
3
Lot:
2.0202 acres
MLS® Number:
202525086
Common Interest
Freehold
Parcel Number:
41543091
Building Type:
House
Community Name:
West Petpeswick
Days On Market:
194
Lot Features
  • Treed
  • Wheelchair access
Water Front Features
  • Waterfront on lake
Community Features
  • School Bus
  • Recreational Facilities
Appliances
  • Water softener
  • Central Vacuum - Roughed In
Cooling
  • Heat Pump
Architectural Style:
  • Bungalow
Foundationd Details:
  • Concrete Slab
Basement:
  • None
Exterior Features:
  • Vinyl
Flooring:
  • Tile
  • Laminate
  • Vinyl
Parking Features:
  • Gravel
Structure Type:
  • House
Water Source:
  • Drilled Well
Sewer:
  • Septic System
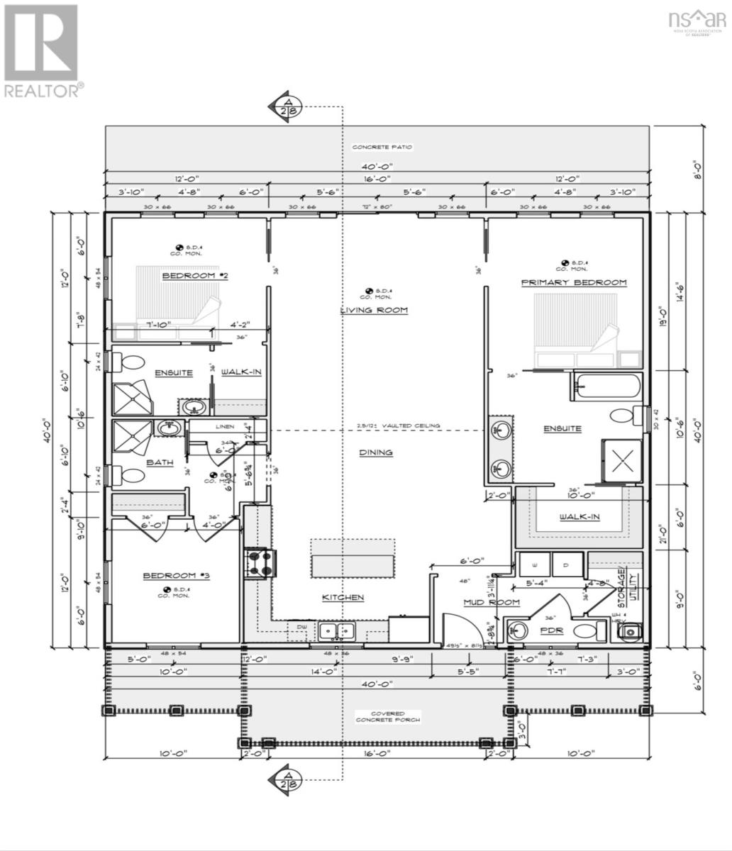
Kitchen 14 x 15
Dining room 16 x 15
Living room 16 x 20
Primary Bedroom 12 x 19
Ensuite (# pieces 2-6) 12 x 10.6
Bedroom 12 x 12
Bath (# pieces 1-6) 7 x 12
Bedroom 10 x 12
Bath (# pieces 1-6) 7 x 10
Mud room 5.5 x 7
Bath (# pieces 1-6) 8 x 4
Laundry / Bath 6 x 4
107 to Musquodoboit village to the west Petpeswick rd to Mines rd to Miners ridge!
Neighbourhood map for property at Lot 7 Dark Pond Lane
Lot 7 Dark Pond Lane West Petpeswick
Provincial Map showing Lot 7 Dark Pond Lane
Lot 7 Dark Pond Lane West Petpeswick

Inquire Today

Name is required.
Phone is required.
Valid email is required.
Message is required.
Please complete the captcha.
Powered By Realtor logo MLS® Listing data is provided by The Canadian Real Estate Association (CREA) and is deemed reliable but not guaranteed. The trademarks REALTOR®, REALTORS®, and the REALTOR® logo are controlled by CREA and identify real estate professionals who are members of CREA. The trademarks MLS®, Multiple Listing Service® and related logos are owned by CREA and identify the quality of services provided by real estate professionals who are members of CREA. Listing information is provided by participating real estate brokerages.

Similar Listings