$548,800

Lot 51 Mallard Avenue, (Portion of)

Canaan Nova Scotia B4N 0A8

Single Family
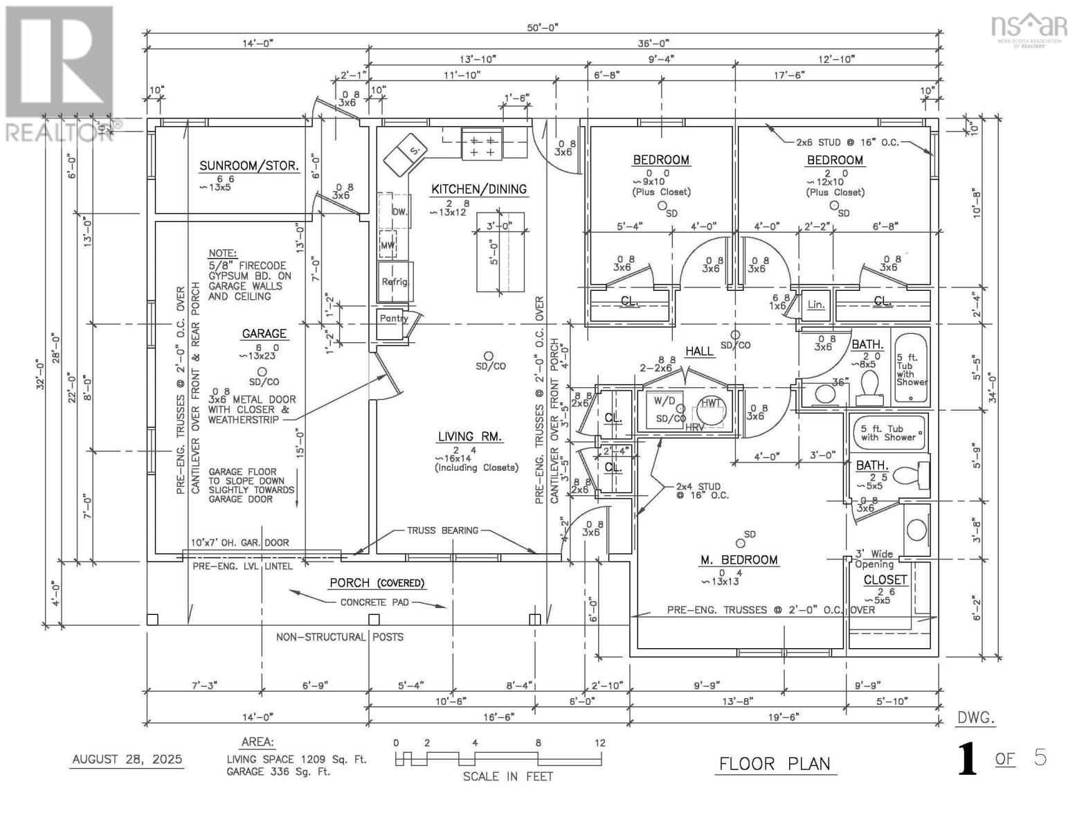
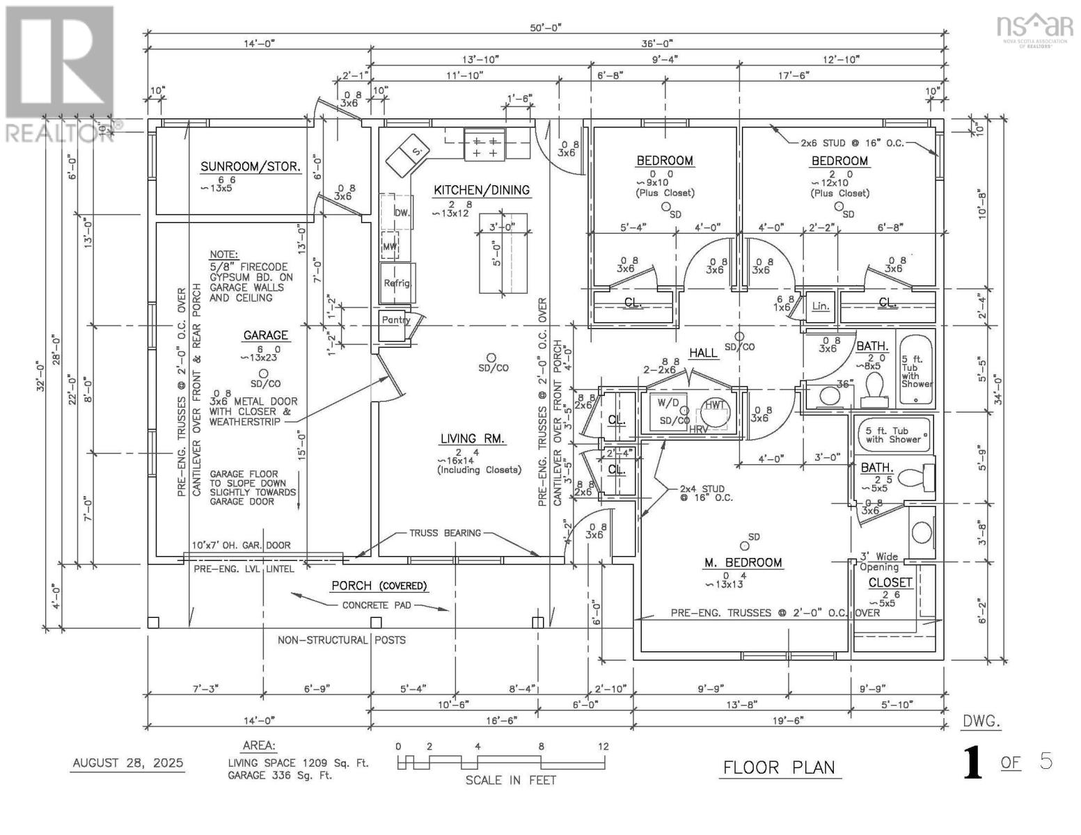
1209.0 square feet
3
2
MLS® 202524101
Listing Courtesy of MacKay Real Estate Ltd.

Description

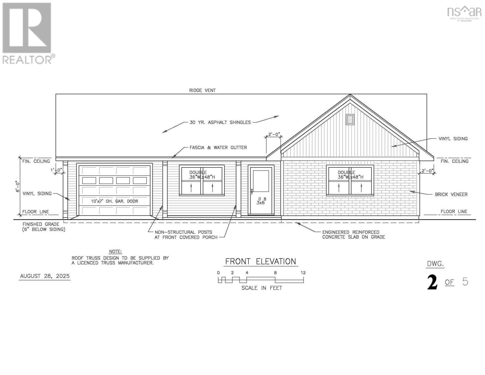
Welcome to this thoughtfully designed, energy-efficient new build in the desirable Canaan Heights neighbourhood. Featuring 3 bedrooms, 2 full baths, and a single attached garage, this home offers modern comfort in a convenient location. Inside, enjoy year-round efficiency with electric baseboard heating, a ductless Mitsubishi heat pump, and Energy Star rated appliances. Waterproof vinyl plank flooring runs throughout, and the property will be fully landscaped and paved upon completion - ready for you to move in and enjoy. Canaan Heights is an established subdivision in the heart of the Annapolis Valley, known for its stunning views of Cape Blomidon. Families and retirees alike will appreciate the community park, playground, walking trails, basketball court, and picnic areas - prefect for enjoying the outdoors. With quick highway access and just minutes to shopping, recreation, and essential services, this home provides the ideal balance of tranquility and convenience. (id:56844)

ID:
202524101
Category:
Single Family
Status:
Active
Living Area:
1209.0 square feet
Stories:
1.00
Bathrooms:
2
Bedrooms:
3
Lot:
1.141 acres
MLS® Number:
202524101
Common Interest
Freehold
Parcel Number:
55551931 portion of
Building Type:
House
Community Name:
Canaan
Days On Market:
209
Community Features
  • School Bus
Appliances
  • Washer
  • Refrigerator
  • Dishwasher
  • Dryer
  • Microwave
Cooling
  • Heat Pump
Foundationd Details:
  • Concrete Slab
Basement:
  • None
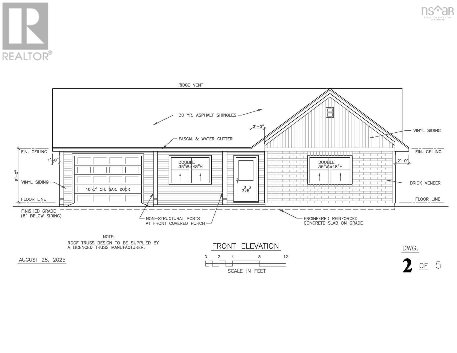
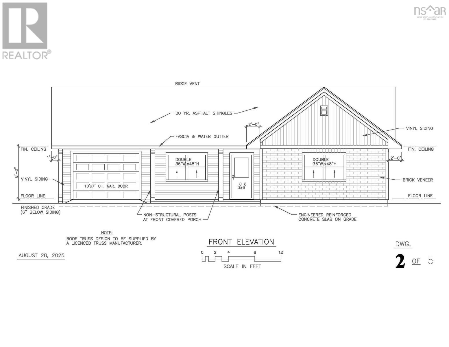
Exterior Features:
  • Vinyl
Flooring:
  • Vinyl Plank
Parking Features:
  • Attached Garage
  • Garage
  • Concrete
Structure Type:
  • House
Water Source:
  • Municipal water
Sewer:
  • Municipal sewage system
Living room 16x14
Kitchen 13x12
Storage 13x5
Bedroom 9x10
Bedroom 12x10
Bath (# pieces 1-6) 8x5
Primary Bedroom 13x13
Bath (# pieces 1-6) 5x5
Hwy 101 take Exit 12, south on New Canaan Road, left into Canaan Heights subdivision
Neighbourhood map for property at Lot 51 Mallard Avenue, (Portion of)
Lot 51 Mallard Avenue, (Portion of) Canaan
Provincial Map showing Lot 51 Mallard Avenue, (Portion of)
Lot 51 Mallard Avenue, (Portion of) Canaan

Inquire Today

Name is required.
Phone is required.
Valid email is required.
Message is required.
Please complete the captcha.
Powered By Realtor logo MLS® Listing data is provided by The Canadian Real Estate Association (CREA) and is deemed reliable but not guaranteed. The trademarks REALTOR®, REALTORS®, and the REALTOR® logo are controlled by CREA and identify real estate professionals who are members of CREA. The trademarks MLS®, Multiple Listing Service® and related logos are owned by CREA and identify the quality of services provided by real estate professionals who are members of CREA. Listing information is provided by participating real estate brokerages.

Similar Listings