$439,000

57 Kara Anne Court

New Minas Nova Scotia B4N 0H6

Single Family
1520.0 square feet
3
2/1
MLS® 202521092
Listing Courtesy of Royal LePage Atlantic (New Minas)

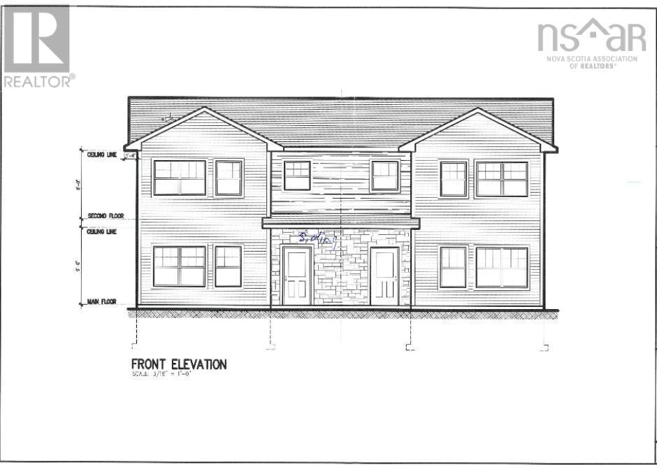
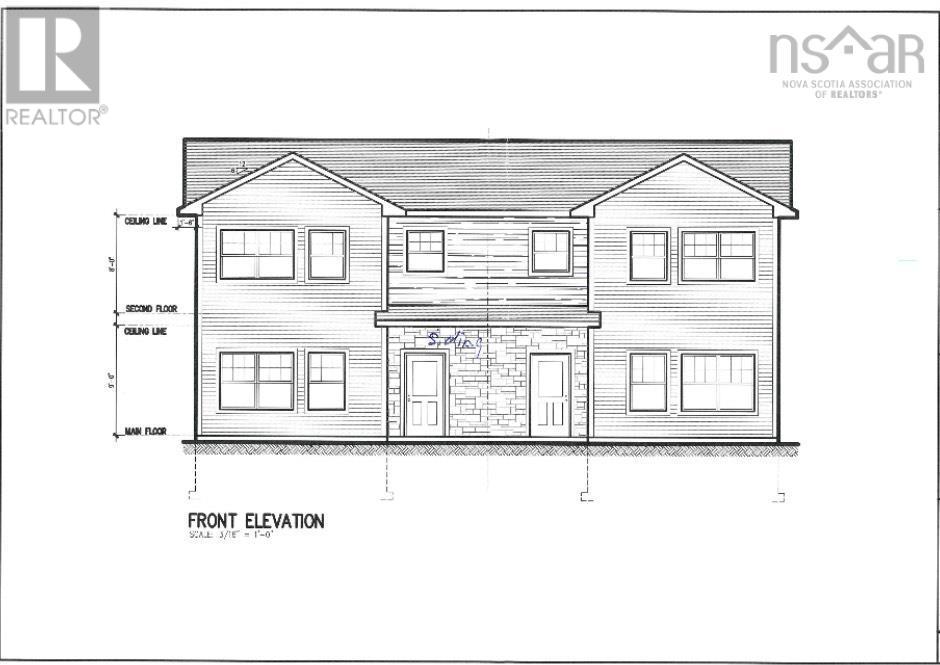
Description

This brand new, three bedroom, 1.5 bath family home is now under construction. These quality built homes are conveniently located on the bus route. Sidewalks lead you to downtown, where you can enjoy many amenities, including shopping, theatre, the gym, dining, the Veterinary and many more! Its just a short drive to Acadia University, many local award-winning wineries, Hwy # 101 access and Kingsport, where you can enjoy views of some of the highest tides in the world. The kitchen boasts ample cabinets, with a peninsula and space for a dishwasher. You can access the deck via patio doors from the dining area. The laundry is conveniently located on the upper level near the bedrooms. Large windows allow for lots of natural light. Easy care vinyl plank flooring is found throughout the home, except the stairway, where youll find non-slip carpet. Lot to be subdivided prior to closing. Total lot size to be approx 5500 sf, but will be determined when divided. (id:56844)

ID:
202521092
Category:
Single Family
Status:
Active
Living Area:
1520.0 square feet
Stories:
2.00
Bathrooms:
2
Bathrooms (partial):
1
Bedrooms:
3
Lot:
0.116 acres
MLS® Number:
202521092
Common Interest
Freehold
Parcel Number:
55557227
Building Type:
House
Community Name:
New Minas
Days On Market:
284
Community Features
  • School Bus
  • Recreational Facilities
Cooling
  • Heat Pump
Foundationd Details:
  • Concrete Slab
Basement:
  • None
Exterior Features:
  • Vinyl
Flooring:
  • Carpeted
  • Vinyl Plank
Parking Features:
  • Paved Yard
Structure Type:
  • House
Water Source:
  • Municipal water
Sewer:
  • Municipal sewage system
Foyer 4.11 x 6.3
Living room 12. x 20.7
Dining room 10.8 x 10.5
Kitchen 12. x 10.5
Bath (# pieces 1-6) 6.1 x 6.9
Utility room 3.6 x 4.11
Primary Bedroom 12.6 x 14
Other 8.10x8.3 - jog walkin
Bath (# pieces 1-6) 6.4 x 8.8
Bedroom 10.2 x 10.7
Bedroom 10.2 x 8.3
Laundry room 6. x 9
Highbury Road to Moores Landing, left to Kara Anne. Watch for sign on the left.
Neighbourhood map for property at 57 Kara Anne Court
57 Kara Anne Court New Minas
Provincial Map showing 57 Kara Anne Court
57 Kara Anne Court New Minas

Inquire Today

Name is required.
Phone is required.
Valid email is required.
Message is required.
Please complete the captcha.
Powered By Realtor logo MLS® Listing data is provided by The Canadian Real Estate Association (CREA) and is deemed reliable but not guaranteed. The trademarks REALTOR®, REALTORS®, and the REALTOR® logo are controlled by CREA and identify real estate professionals who are members of CREA. The trademarks MLS®, Multiple Listing Service® and related logos are owned by CREA and identify the quality of services provided by real estate professionals who are members of CREA. Listing information is provided by participating real estate brokerages.

Similar Listings