$744,900

SP-03A Stephs Street

West Bedford Nova Scotia B4B 0L1

Single Family
2243.0 square feet
3
4/1
MLS® 202519895
Listing Courtesy of Royal LePage Atlantic

Description

Discover The Bellhaven, a 3-bed, 3.5-bath corner unit townhome by Shaughnessy Homes in the desirable Belle Rose Park in West Bedford. Spanning 2,243 sq. ft. across three finished levels, this home blends modern comfort with stylish design. The main floor features a home office, a sleek kitchen with premium finishes, and an open-concept living and dining area perfect for entertaining. Upstairs, three spacious bedrooms include a luxurious primary suite. Engineered hardwood graces the main and second levels, while the walk-out basement offers a wet bar, and a bright bonus space for guests or recreation. Stay comfortable with ducted heating/cooling with a natural gas backup, plus rough-ins for a gas range, dryer, BBQ, water heater, and a 50 AMP EV charger. Nestled off Larry Uteck Blvd, Belle Rose Park offers easy access to schools, shops, and parks in a quiet, master-planned community. Built with Shaughnessy Homes signature quality, The Bellhaven is a rare opportunity to own in one of Halifaxs most sought-after neighborhoods. (id:56844)

ID:
202519895
Category:
Single Family
Status:
Active
Living Area:
2243.0 square feet
Stories:
3.00
Bathrooms:
4
Bathrooms (partial):
1
Bedrooms:
3
Lot:
0.5497 acres
MLS® Number:
202519895
Common Interest
Freehold
Parcel Number:
41547597
Building Type:
Row / Townhouse
Community Name:
West Bedford
Days On Market:
253
Appliances
  • None
Cooling
  • Heat Pump
Architectural Style:
  • 3 Level
Foundationd Details:
  • Poured Concrete
Exterior Features:
  • Vinyl
  • Other
Flooring:
  • Tile
  • Laminate
Parking Features:
  • Garage
  • Paved Yard
Structure Type:
  • Row / Townhouse
Water Source:
  • Municipal water
Sewer:
  • Municipal sewage system
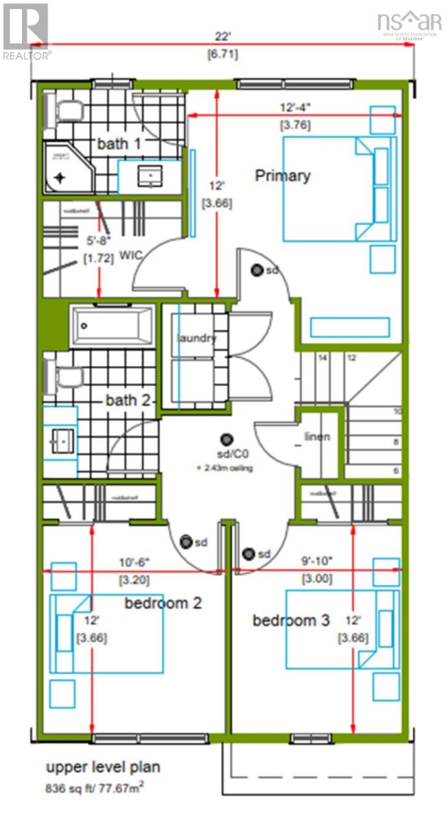
Living room 20.8 x 14.6
Kitchen 11.4 x 10.4
Dining room 10.4 x 11
Bath (# pieces 1-6) 2 Piece
Den 7.8 x 9.4
Primary Bedroom 12.4 x 12
Ensuite (# pieces 2-6) 3 Piece
Bedroom 9.1 x 12
Bedroom 10.6 x 12
Bath (# pieces 1-6) 4 Piece
Laundry room 2
Recreational, Games room 14.6 x 10.6
Bath (# pieces 1-6) 4 Piece
Larry Uteck Blvd to Stephs St
Neighbourhood map for property at SP-03A Stephs Street
SP-03A Stephs Street West Bedford
Provincial Map showing SP-03A Stephs Street
SP-03A Stephs Street West Bedford

Inquire Today

Name is required.
Phone is required.
Valid email is required.
Message is required.
Please complete the captcha.
Powered By Realtor logo MLS® Listing data is provided by The Canadian Real Estate Association (CREA) and is deemed reliable but not guaranteed. The trademarks REALTOR®, REALTORS®, and the REALTOR® logo are controlled by CREA and identify real estate professionals who are members of CREA. The trademarks MLS®, Multiple Listing Service® and related logos are owned by CREA and identify the quality of services provided by real estate professionals who are members of CREA. Listing information is provided by participating real estate brokerages.

Similar Listings