$1,150,000

51 Eagle Point Drive

Windsor Junction Nova Scotia B2T 1K1
Single Family
3089.0 square feet
4
4/2
MLS® 202514505
Listing Courtesy of Exit Realty Metro

Description

Welcome to the exquisite lakefront property at 51 Eagle Point Drive, nestled on a peaceful cul-de-sac in Windsor Junction. This stunning home offers a unique blend of tranquility and convenience, with downtown Halifax and the international airport just minutes away, along with easy highway access.This remarkable residence, boasting approximately 3000 sq ft, has been meticulously cared for and epitomizes luxury, style, and comfort. From the moment you enter the foyer, youll be captivated by the breathtaking views of Three Mile Lake, locally known as Keiths Lake. This impressive home features four bedrooms, four bathrooms, a two-car garage, and the added benefits of a ducted heat pump and municipal water, ensuring worry-free living for years to come. The bright and impeccably clean interior has been enhanced by significant updates in recent years and is sure to impress family and friends alike. The exceptionally functional layout is a standout feature, including a main floor primary bedroom complete with a well-appointed ensuite bathroom. Upstairs, youll find generously sized bedrooms offering more spectacular lake vistas, a stylish five-piece bathroom, and a comfortable den perfect for movie nights or as a flexible living space. The lower level provides a walkout with abundant natural light and effortless access to the lake. The outdoor area is an entertainers dream and a private haven. This property offers the best of all seasons with year-round enjoyment on the lake, whether its swimming, paddling, or skating, making a separate cottage unnecessary. We invite you to call your preferred Realtor today to schedule a viewing and experience the allure of 51 Eagle Point Drive firsthand. (id:56844)

ID:
202514505
Category:
Single Family
Status:
Active
Living Area:
3089.0 square feet
Stories:
2.00
Bathrooms:
4
Bathrooms (partial):
2
Bedrooms:
4
Lot:
0.3489 acres
MLS® Number:
202514505
Common Interest
Freehold
Parcel Number:
40015547
Year Built:
1981
Building Type:
House
Community Name:
Windsor Junction
Days On Market:
215
View
  • Lake view
Lot Features
  • Balcony
  • Level
  • Gazebo
Water Front Features
  • Waterfront
Community Features
  • School Bus
  • Recreational Facilities
Cooling
  • Central air conditioning
  • Heat Pump
Foundationd Details:
  • Poured Concrete
Basement:
  • Finished
  • Full
  • Walk out
Exterior Features:
  • Stone
  • Wood siding
Flooring:
  • Hardwood
  • Laminate
  • Ceramic Tile
Parking Features:
  • Attached Garage
  • Garage
  • Paved Yard
Structure Type:
  • House
Water Source:
  • Municipal water
Sewer:
  • Septic System
Living room 17.4x14.11
Dining room 18.7x13-jog
Dining room 10.9x14.10
Foyer 12.6x13.3
Primary Bedroom 21.10x15.2
Ensuite (# pieces 2-6) 8.4x9.5
Kitchen 9.8x10.0
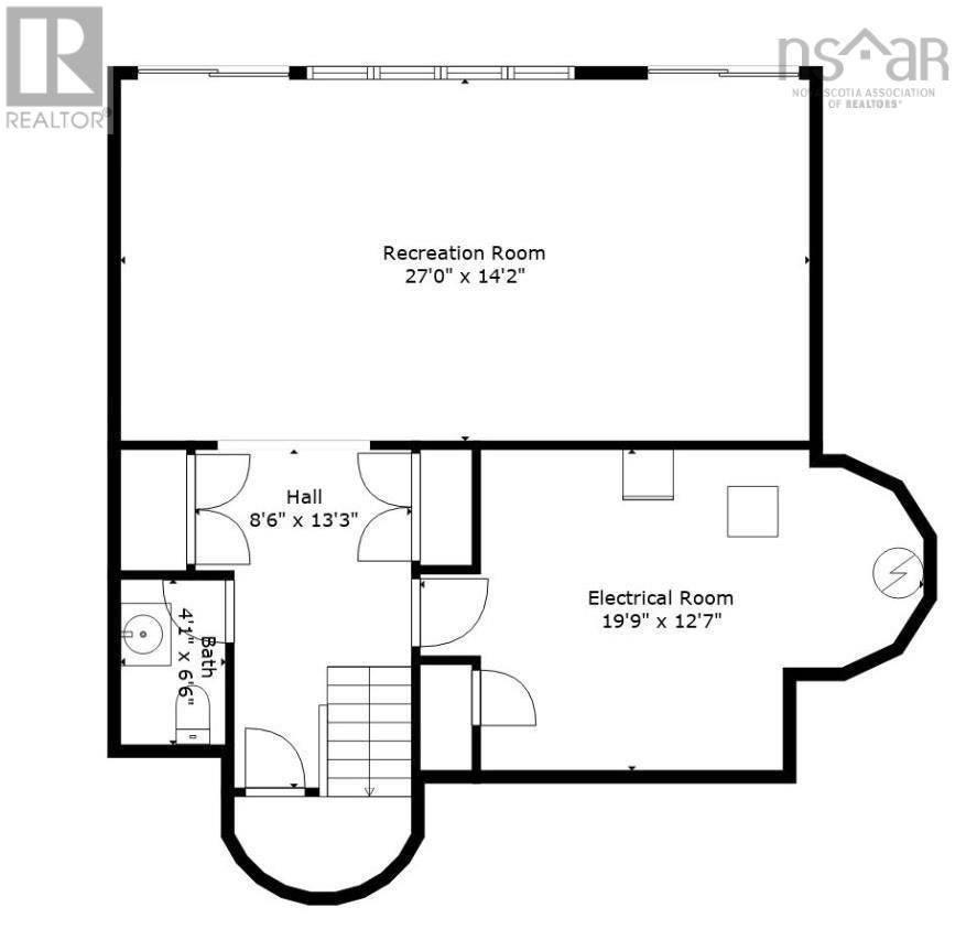
Storage 13.2x5.6
Bath (# pieces 1-6) 4.0x5.8
Foyer 9.2x6
Laundry room 5.1x5.8
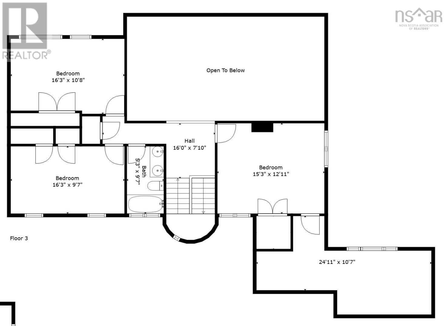
Bedroom 16.3x10.8
Bedroom 16.3x9.7
Bath (# pieces 1-6) 5.3x9.7
Foyer 16.0x7.10
Storage 24.11x10.7-jog
Bedroom 15.3x12.11
Utility room 19.9x12.7
Bath (# pieces 1-6) 4.1x6.6
Foyer 8.6x13.3
Recreational, Games room 27.0x14.2
Cobequid Road to Eagle Point Drive
Neighbourhood map for property at 51 Eagle Point Drive
51 Eagle Point Drive Windsor Junction
Provincial Map showing 51 Eagle Point Drive
51 Eagle Point Drive Windsor Junction

Inquire Today

Name is required.
Phone is required.
Valid email is required.
Message is required.
Please complete the captcha.
Powered By Realtor logo MLS® Listing data is provided by The Canadian Real Estate Association (CREA) and is deemed reliable but not guaranteed. The trademarks REALTOR®, REALTORS®, and the REALTOR® logo are controlled by CREA and identify real estate professionals who are members of CREA. The trademarks MLS®, Multiple Listing Service® and related logos are owned by CREA and identify the quality of services provided by real estate professionals who are members of CREA. Listing information is provided by participating real estate brokerages.