$579,000

255 Virginia Road

Virginia East Nova Scotia B0S 1G0

Single Family
1154.0 square feet
3
1
MLS® 202509967
Listing Courtesy of Royal LePage Atlantic (Greenwood)

Description

Welcome to 255 Virginia East, nestled in the heart of Nova Scotia on an expansive property of approximately 125 acres. This property is one to see! You can enjoy your time wandering nearly 2 miles of well maintained trails and woods roads throughout the property, spend time by the spring fed pond or watching for deer and other wildlife crossing the approximate 10 acres of fields with wild apple trees and blueberries. The yard around the home is beautifully landscaped and you can appreciate comfortable one level living in the lovingly maintained bungalow where pride of ownership is evident throughout. With 3 bedrooms, a bright living room and updated spacious kitchen, the home is well laid out and functional. The added bonus of a back deck and a screened in front porch make indoor/outdoor living seamless and enjoyable. The large wired garage and storage shed give you work space or storage room for equipment, toys or garden tools. This property is located 25 minutes from amenities of Digby, 15 minutes from Annapolis Royal and under 30 minutes from Kejimkujik National Park, Mickey Hill Provincial Park, Raven Haven Beach and many other fantastic Nova Scotia experiences and activities to take advantage of. This property would make a wonderful family home for anyone who loves nature, a great hobby farm or might be a good fit for someone wishing to develop a business as it is already nicely groomed and would suit a number of different options for entrepreneurs. There is also a pre existing septic and well (condition to be verified by buyer) where a mobile home once was that may be suitable to build another dwelling for a multi generational homestead or an income property. Dont wait! Book your viewing of this stunning property and see for yourself all it has to offer! (id:56844)

ID:
202509967
Category:
Single Family
Status:
Active
Living Area:
1154.0 square feet
Stories:
1.00
Bathrooms:
1
Bedrooms:
3
Lot:
125.47 acres
MLS® Number:
202509967
Common Interest
Freehold
Parcel Number:
05088323
Year Built:
1982
Building Type:
House
Community Name:
Virginia East
Days On Market:
344
Lot Features
  • Treed
Appliances
  • Washer
  • Refrigerator
  • Dishwasher
  • Stove
  • Dryer
  • Microwave
Cooling
  • Heat Pump
Foundationd Details:
  • Poured Concrete
Basement:
  • Full
Flooring:
  • Hardwood
  • Laminate
  • Other
  • Vinyl
Parking Features:
  • Detached Garage
  • Garage
  • Gravel
Structure Type:
  • House
Water Source:
  • Drilled Well
Sewer:
  • Septic System
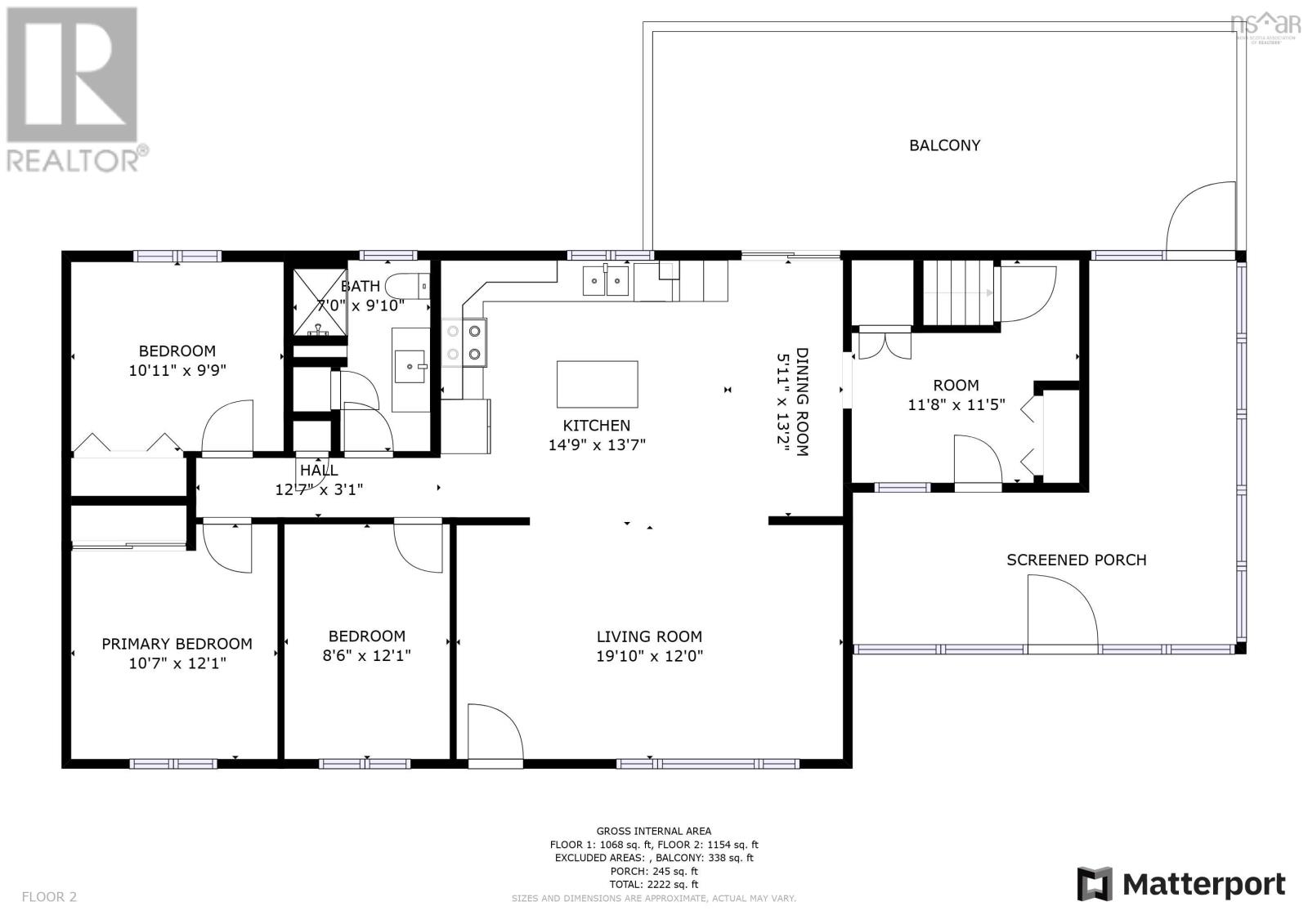
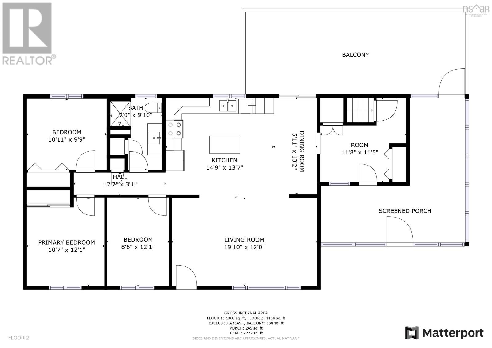
Mud room 11.8 x 11.5
Eat in kitchen 14.9 x 13.7 + 5.11 x 13.2
Living room 19.10 x 12
Bedroom 8.6 x 12.1
Bedroom 10.7 x 9.9
Bath (# pieces 1-6) 7 x 9.1
From Annapolis on Clementsvale Road, left onto Virginia Road. Watch for civic number.
Neighbourhood map for property at 255 Virginia Road
255 Virginia Road Virginia East
Provincial Map showing 255 Virginia Road
255 Virginia Road Virginia East

Inquire Today

Name is required.
Phone is required.
Valid email is required.
Message is required.
Please complete the captcha.
Powered By Realtor logo MLS® Listing data is provided by The Canadian Real Estate Association (CREA) and is deemed reliable but not guaranteed. The trademarks REALTOR®, REALTORS®, and the REALTOR® logo are controlled by CREA and identify real estate professionals who are members of CREA. The trademarks MLS®, Multiple Listing Service® and related logos are owned by CREA and identify the quality of services provided by real estate professionals who are members of CREA. Listing information is provided by participating real estate brokerages.

Similar Listings