Description
New one level, energy efficient home under construction in Cambridge Village Subdivision in the heart of the beautiful Annapolis Valley! This 1,060 S/F house being built by New Life Developments offers low maintenance and all the peace of mind that comes with a quality new build. This home an open concept kitchen, living room and dining room. The kitchen and bathrooms have quartz countertops. Other notable features of the home include: wide accessible doorways, primary bedroom with walk-in closet & ensuite bath with shower/tub combo, LED pot lights throughout, 200 AMP service, generator plug, ductless heat pump for efficient heating & summertime cooling, attached heated garage with power door, mechanical room in garage, HRV and so much more. This home is walking distance to local schools & child care and a short drive to all the the amenities in Berwick and Kentville, including the largest hospital in the area, Valley Regional Hospital. A short 12 minute drive east to New Minas will lead you to the main commercial shopping area in the Annapolis Valley and a 25 minute drive to the west makes for an easy commute to CFB Greenwood. Walking and cycling trails are close by and Valley Life offers farm markets, apple orchards, wineries and ocean views at every turn. This home comes with a full Atlantic Home Warranty for peace of mind. Dont miss out! (id:56844)
- ID:
- 202508630
- Category:
- Single Family
- Status:
- Active
- Living Area:
- 1060.0 square feet
- Stories:
- 1.00
- Bathrooms:
- 2
- Bedrooms:
- 2
- Lot:
- 0.1549 acres
- MLS® Number:
- 202508630
- Common Interest
- Freehold
- Parcel Number:
- 55554026
- Building Type:
- House
- Community Name:
- Cambridge
- Days On Market:
- 266
- School Bus
- Recreational Facilities
- None
- Heat Pump
- Concrete Slab
- Poured Concrete
- None
- Vinyl
- Ceramic Tile
- Vinyl Plank
- Attached Garage
- Garage
- House
- Drilled Well
- Municipal sewage system
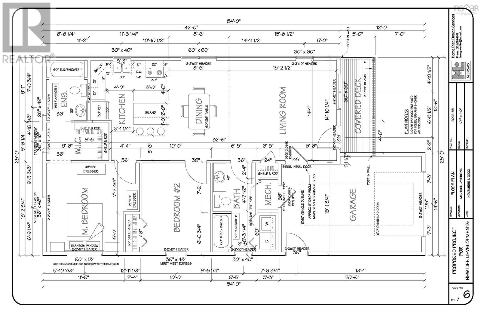
| Living room | 14.1 x 15.3 | |
| Bath (# pieces 1-6) | 13.3 x 9.8 - jog | |
| Dining nook | 14.1 x 8.6 | |
| Bedroom | 13.3 x 10 | |
| Kitchen | 14.1 x 10.11 | |
| Primary Bedroom | 13.3 x 12.11 - jog | |
| Other | 5.8 x 9.6 - WiC | |
| Ensuite (# pieces 2-6) | 9.1 x 6.6 |