$474,900

Lot 25-8 Michaela Street

Pictou Nova Scotia B0K 1H0

Single Family
1900.0 square feet
3
3/1
MLS® 202506049
Listing Courtesy of The Agency Real Estate Brokerage

Description

This is a Facsimile Listing for a New Build. Photos included are Artist Renderings. Welcome to The OrchidYour haven of effortless living in seaside Pictou. Discover the perfect blend of comfort, convenience, and coastal charm in this stunning 2-level home. Designed for those seeking a low-maintenance lifestyle, The Orchid at RoseView Estates offers the ideal retreat - with no condo fees. Located just minutes from Pictous historic waterfront, hospitals, boutique shops, & charming restaurants, this vibrant new subdivision combines modern design with the timeless appeal of small-town living. Why The Orchid is perfect for you? Thoughtful design for modern living: With an open-concept layout, and oversized windows, your home is bright, airy, and ideal for relaxing or hosting friends. Whether youre creating a home office or enjoying a quiet evening, The Orchid provides the flexibility you need. Luxurious comfort: Retreat to your personal oasis featuring a spa-like ensuite and a spacious walk-in closet. Perfect for unwinding after a productive day or preparing for a relaxing seaside stroll. Chef-Inspired Kitchens: Custom cabinetry, and premium countertops make every meal an experience, from quick lunches to dinner parties. Professionally designed green spaces provide a tranquil environment to unwind or socialize. Energy-efficient and durable: Built with Insulated Concrete Form (ICF) foundations, these homes ensure superior strength, energy savings, and lasting comfort. Your dream lifestyle awaits: RoseView Estates combines coastal charm with modern convenience, creating the perfect community for anyone seeking all-inclusive, stress-free living. (id:56844)

ID:
202506049
Category:
Single Family
Status:
Active
Living Area:
1900.0 square feet
Stories:
2.00
Bathrooms:
3
Bathrooms (partial):
1
Bedrooms:
3
Lot:
0.129 acres
MLS® Number:
202506049
Common Interest
Freehold
Parcel Number:
65243925
Building Type:
House
Community Name:
Pictou
Days On Market:
338
View
  • Ocean view
Community Features
  • School Bus
Cooling
  • Heat Pump
Architectural Style:
  • 2 Level
Foundationd Details:
  • Poured Concrete
Basement:
  • None
Exterior Features:
  • Vinyl
Flooring:
  • Laminate
Parking Features:
  • Concrete
Structure Type:
  • House
Water Source:
  • Municipal water
Sewer:
  • Municipal sewage system
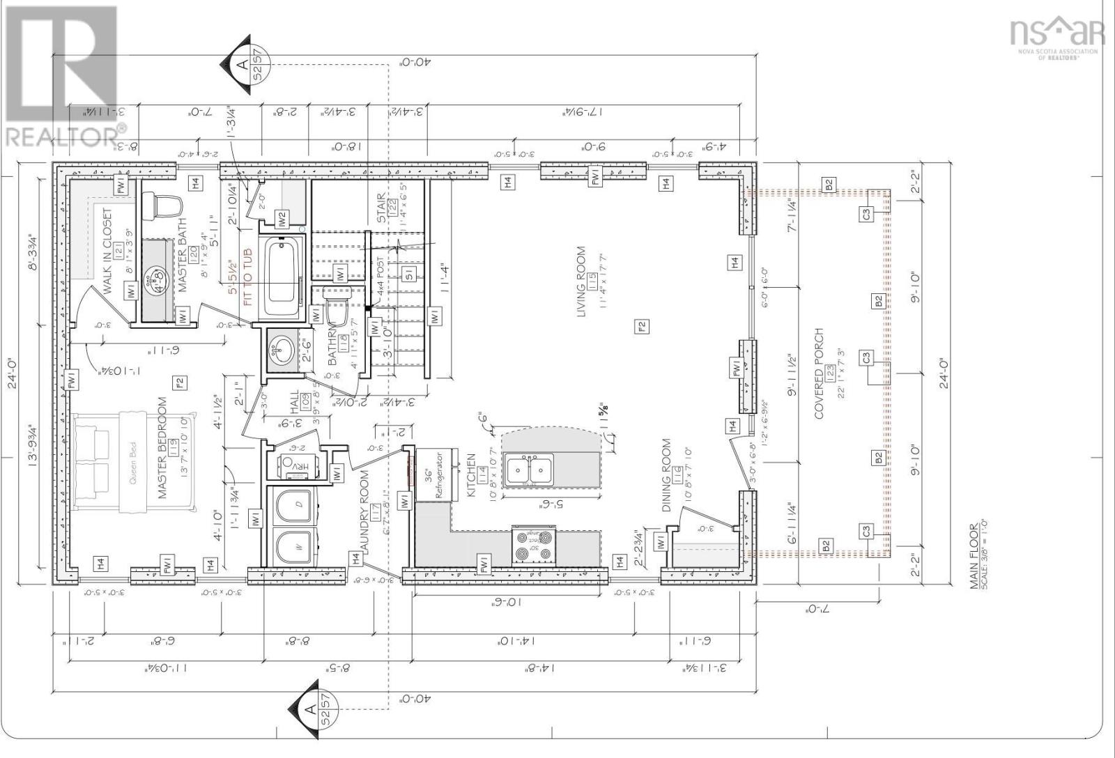
Living room 11.4x17.7
Dining room 10.8x7.10
Kitchen 10.8x10.7
Laundry room 6.7x8.1
Bath (# pieces 1-6) 4.11x5.7
Ensuite (# pieces 2-6) 8.1x9.4
Bedroom 13.7x10.10
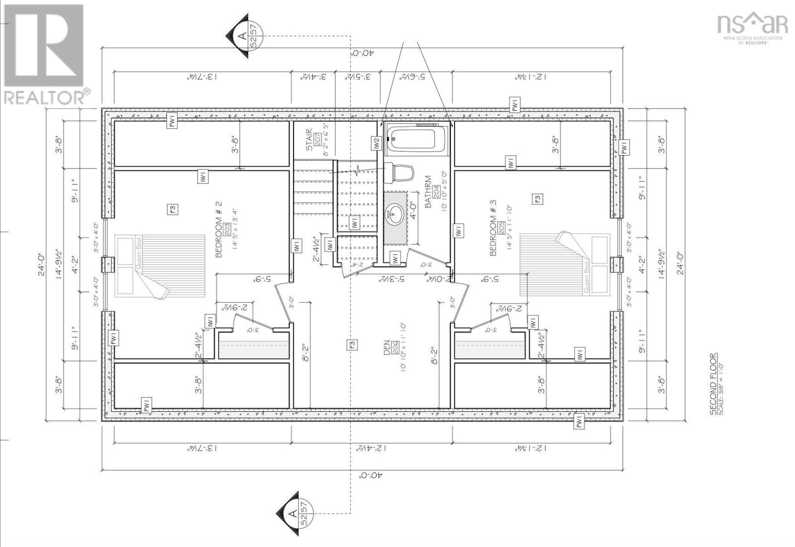
Bedroom 14.5x13.4
Den 10.10x11.10
Bedroom 14.5x11.20
Bath (# pieces 1-6) 10.10x5
Head east on Church St toward Market St, Continue onto Denoon St. Continue onto Beeches Rd. Destination will be on the left.
Lot 25-8 Michaela Street Pictou

Inquire Today

Name is required.
Phone is required.
Valid email is required.
Message is required.
Please complete the captcha.
Powered By Realtor logo MLS® Listing data is provided by The Canadian Real Estate Association (CREA) and is deemed reliable but not guaranteed. The trademarks REALTOR®, REALTORS®, and the REALTOR® logo are controlled by CREA and identify real estate professionals who are members of CREA. The trademarks MLS®, Multiple Listing Service® and related logos are owned by CREA and identify the quality of services provided by real estate professionals who are members of CREA. Listing information is provided by participating real estate brokerages.