$399,900

22 Joy Drive

Greenfield Nova Scotia B6L 3S9

Single Family
1049.0 square feet
2
1
MLS® 202504223
Listing Courtesy of Hants Realty Ltd.

Description

Looking for a new home that has 2 bedrooms on a heated in-floor slab with attached garage in Colchester? Look no further than this new home located on Joy Dr, Greenfield. This 1.3 acre property will be impressive. This new construction on slab will be mobility friendly with 36 door openings and lowered controls throughout. The kitchen features stainless steel appliances, plenty of cabinetry (soft close), two pantries and a gorgeous quartz countertop island peninsula with sink and breakfast bar. Perfect for a small family this home has 2 large bedrooms and a four piece bathroom that includes quartz countertops and ceramic floor. The main floor bedrooms, living room and kitchen has laminate flooring throughout. The heating systems are in-floor heat, and ductless heat pump that offers A/C in the summer and heating in the winter. Energy efficiency is key with this home so your energy bills should be minimal. There is additional room for storage in the single attached garage. Light is LED throughout the home with pot lights in the kitchen. In the utility room located in the garage youll find a 200 amp electrical breaker panel with pressure tank, electric hot water heater and HRV unit for air exchange in the home. The home has vinyl siding, asphalt roof and vinyl windows. On the exterior of the home you will have a new single gravel driveway, seeded lot (weather dependent) and a covered porch area on the front of the home with pot lights. Dont miss out on this new build with 8 year LUX home warranty in Greenfield for summer of 2026 possession. The purchase price includes HST. All HST rebates back to the builder. (id:56844)

ID:
202504223
Category:
Single Family
Status:
Active
Living Area:
1049.0 square feet
Stories:
1.00
Bathrooms:
1
Bedrooms:
2
Lot:
1.3096 acres
MLS® Number:
202504223
Common Interest
Freehold
Parcel Number:
20501029
Building Type:
House
Community Name:
Greenfield
Days On Market:
360
Lot Features
  • Treed
  • Wheelchair access
Community Features
  • School Bus
Appliances
  • Refrigerator
  • Range - Electric
  • Dishwasher
  • Microwave Range Hood Combo
Cooling
  • Heat Pump
Foundationd Details:
  • Concrete Slab
Basement:
  • None
Exterior Features:
  • Vinyl
Flooring:
  • Tile
  • Laminate
  • Ceramic Tile
Parking Features:
  • Attached Garage
  • Garage
  • Gravel
Structure Type:
  • House
Water Source:
  • Drilled Well
Sewer:
  • Septic System
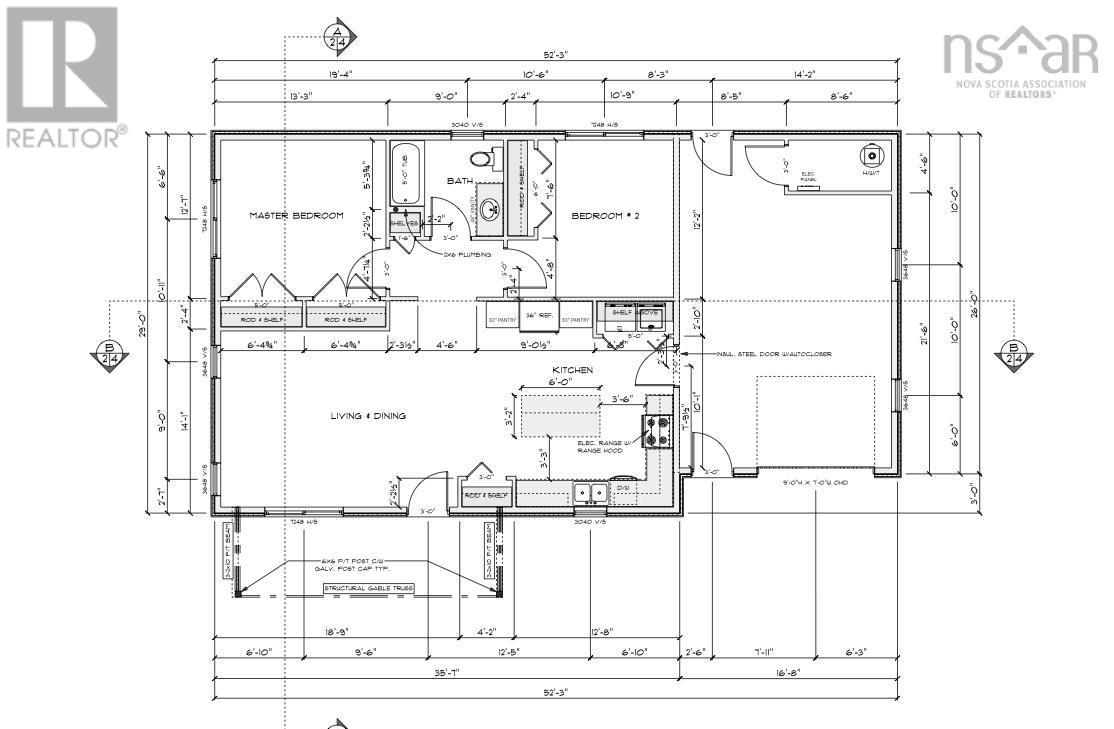
Living room 14.1x18.9
Kitchen 16.5x15. 3 1/2
Primary Bedroom 13.3 x 12.7
Bedroom 10.9 x 12.2
Bath (# pieces 1-6) 9. x 7.6 - jog
Take Queen Street East Truro, to Salmon River Road East, turns to Greenfield Rd, turn left onto Greg Rd, turn right onto Joy Dr.
Neighbourhood map for property at 22 Joy Drive
22 Joy Drive Greenfield
Provincial Map showing 22 Joy Drive
22 Joy Drive Greenfield

Inquire Today

Name is required.
Phone is required.
Valid email is required.
Message is required.
Please complete the captcha.
Powered By Realtor logo MLS® Listing data is provided by The Canadian Real Estate Association (CREA) and is deemed reliable but not guaranteed. The trademarks REALTOR®, REALTORS®, and the REALTOR® logo are controlled by CREA and identify real estate professionals who are members of CREA. The trademarks MLS®, Multiple Listing Service® and related logos are owned by CREA and identify the quality of services provided by real estate professionals who are members of CREA. Listing information is provided by participating real estate brokerages.